Купить ПСН 756 м²
ID 1342513
Цена
175 000 000 ₽
Ставка
231 481 ₽ / м²
Площадь
756 м²
Этаж
1 из -
ИФНС
7733
агентство недвижимости
г Москва, пер 1-й Митинский, д 12
На карте
Митино
—
16 мин
Описание
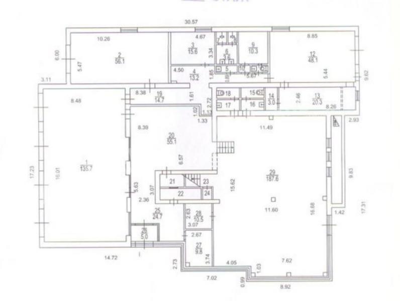
Лот №998960 Предлагается к продаже здание автосалона общей площадью 755.40 м²., на земельном участке площадью 2351 м², аренда действует до 2055 года.
Объект расположен в одном из наиболее густонаселенных районов СЗАО Москвы – Митино. Доступность личным транспортом: 200 м от Пятницкого шоссе, 700 м от МКАД.
Объект представляет собой 2-х этажное здание. Высокие потолки 4,6 метра. Витринное остекление. В наличии все необходимые коммуникации: водо- и электроснабжение, канализация, отопление, вентиляция и кондиционирование. Обеспеченность электричеством – 364,8 кВт.
Парковка на 20 автомобилей. Здание подойдет под Автосалон, Магазин запчастей, Автосервис, магазин, Дилерский центр, Детейлинг, Супермаркет, Даркстор итд.
Готовый качественный объект: высокие потолки, витринное остекление, высококачественная отделка — можно сразу запускать бизнес без масштабных вложений в ремонт.
Продажа объекта по ДКП с НДС.
В цену включено: НДС 22%.
Чтобы получить ПОДРОБНУЮ ПРЕЗЕНТАЦИЮ С ПЛАНИРОВКОЙ И ФОТОГРАФИЯМИ на этот объект, звоните. Высылаем в течение 15 минут по запросу!
☎ Конт. лицо: Валентин , доб. 215, ЛОТ №998960
Объект расположен в одном из наиболее густонаселенных районов СЗАО Москвы – Митино. Доступность личным транспортом: 200 м от Пятницкого шоссе, 700 м от МКАД.
Объект представляет собой 2-х этажное здание. Высокие потолки 4,6 метра. Витринное остекление. В наличии все необходимые коммуникации: водо- и электроснабжение, канализация, отопление, вентиляция и кондиционирование. Обеспеченность электричеством – 364,8 кВт.
Парковка на 20 автомобилей. Здание подойдет под Автосалон, Магазин запчастей, Автосервис, магазин, Дилерский центр, Детейлинг, Супермаркет, Даркстор итд.
Готовый качественный объект: высокие потолки, витринное остекление, высококачественная отделка — можно сразу запускать бизнес без масштабных вложений в ремонт.
Продажа объекта по ДКП с НДС.
В цену включено: НДС 22%.
Чтобы получить ПОДРОБНУЮ ПРЕЗЕНТАЦИЮ С ПЛАНИРОВКОЙ И ФОТОГРАФИЯМИ на этот объект, звоните. Высылаем в течение 15 минут по запросу!
☎ Конт. лицо: Валентин , доб. 215, ЛОТ №998960
Расположение
г Москва, пер 1-й Митинский, д 12
Митино
—
16 мин
Технические характеристики
Параметры
Статус владельца объявления
агентство
Новость дня
Расширение возможностей для B2B-клиентов: Avito вводит новые услуги для строительства складов
На платформе Авито теперь доступна категория "Коммерческое строительство" в сегменте услуг, предлагающая широкий выбор специализированных работ и возведение объектов "под ключ" для бизнеса, что упрощает поиск подрядчиков и субподрядчиков для коммерческих проектов.
Все новости
Вчера — 6 мая, среда / Москва
Рекордное количество офисных помещений введено в Москве за первый квартал текущего года.
Вчера — 6 мая, среда / Москва
"Сокращение объемов складских помещений в Московском регионе достигло 14% за первый квартал"
Вчера — 6 мая, среда / Москва
Лишь 10% жилых комплексов располагаются вблизи берега Москвы-реки.
Вчера — 6 мая, среда / Москва
Цены на отели в Москве снизились впервые за два года
Вчера — 6 мая, среда / Карачаево-Черкесская
Капиталовложения в размере 5,83 млрд рублей на развитие курорта "Альто" на Домбае от компании "Плато Девелопмент"
Вчера — 6 мая, среда / Москва
Строительство склада площадью 80 тыс. кв. м для Ozon в Пушкино будет осуществлено компанией NK Group.
Вчера — 6 мая, среда / Санкт-Петербург
«Дача Фаберже в Санкт-Петербурге будет продана на аукционе компанией «Дом.РФ»»
Вчера — 6 мая, среда / Москва
Строительство коммерческих объектов в Москве упало на 91% за год
Вчера — 6 мая, среда / Москва
Как в Москве за первый квартал 2026 года построили 5,433 тыс. кв. м офисов, готовых к адаптации.
Вчера — 6 мая, среда / Санкт-Петербург
Продуктовые сети в России увеличили свои площади в торгово-развлекательном центре Петербурга на треть за последние 6 лет.
Вчера — 6 мая, среда / Москва
С начала года в Москве получили разрешение на строительство более 130 недвижимостей.
5 мая, вторник / Москва
"Сбербанк и Альфа-банк подали в суд на производителя обоев «Артекс» с требованием объявить его банкротом"
5 мая, вторник / Красноярский
"Магазин «ВкусВилл» открыл отдел shop-in-shop в Красноярске через партнерство"
5 мая, вторник / Адыгея
Строительство жилого комплекса на территории туристического парка "Дегуакская поляна" в Адыгее начнется архитектурным проектом от "Семьи" объемом 360 тыс. квадратных метров.
5 мая, вторник / Москва
"Прогнозируется достижение рекордной площади 500 тыс. кв. м под light industrial в Московском регионе к 2026 году"
5 мая, вторник / Астраханская
Фитнес-клуб DDX Fitness открылся в Торгово-Развлекательном Центре «Ярмарка» в городе Астрахань.
5 мая, вторник / Москва
"Объем спроса на офисные помещения в Москве сократился вдвое за последний год"
5 мая, вторник / Москва
"Рост стоимости отделки офисов в Москве превышает уровень инфляции"
5 мая, вторник / Москва
В России впервые за 20 лет не было открыто ни одной новой гостиницы в первом квартале
5 мая, вторник / Москва
Спрос на услуги аренды апартаментов в Санкт-Петербурге упал на четверть.