Главная
Аренда помещений свободного назначения в Москве и МО
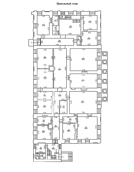
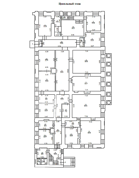
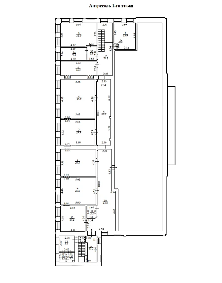
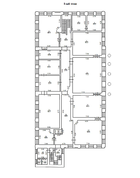
ПСН 1400 м² в торгово-офисном центре Дубровка
Снять ПСН 1400 м² в торгово-офисном центре Дубровка
ID 1365507
Цена
5 000 000 ₽/мес
Ставка
42 857 ₽ / м² / год
Площадь
1400 м²
Этаж
-1 из 1
ИФНС
7723
агентство недвижимости
г Москва, ул Шарикоподшипниковская, д 13 стр 89
На карте
Дубровка
—
4 мин
Дубровка
—
8 мин
Волгоградский проспект
—
10 мин
Описание
==ЛОТ 223886 == ОТ СОБСТВЕННИКА, БЕЗ КОМИССИИ. Предлагается в аренду просторное помещение свободного назначения, расположенное по адресу: Москва, Шарикоподшипниковская улица, 13с89. Общая площадь составляет 1400 м?, что дает возможность для реализации различных бизнес-идей. Помещение на -1 первом этаже удобно доступно с улицы и оснащено тремя входами, что обеспечит комфортный поток клиентов. Локация примечательна ВХОД ИЗ МЕТР. Этот район славится развитой инфраструктурой и высоким уровнем проходимости. Рядом расположены популярные коммерческие объекты и заведения, что создаёт отличные условия для привлечения клиентов. Высота потолков составляет 2,8 м, а в помещении имеются три мокрые точки, что подойдет для организации кафе, магазина или другого бизнеса. Помещение оборудовано современными системами пожарной безопасности и центральным отоплением. Для комфортного пребывания предусмотрены местные системы кондиционирования. Это идеальный вариант для тех, кто ищет функциональное пространство для стабильного бизнеса в центре Москвы.
Расположение
г Москва, ул Шарикоподшипниковская, д 13 стр 89
Дубровка
—
4 мин
Дубровка
—
8 мин
Волгоградский проспект
—
10 мин
Технические характеристики
Параметры
Канализация
есть
Инженерия
кондиционер, пожарная сигнализация
Статус владельца объявления
агентство
Параметры помещения
Высота потолков
—
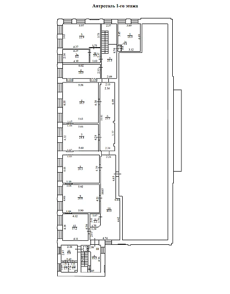
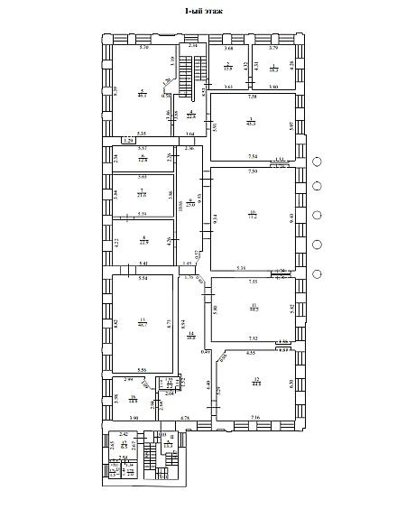
Свободные помещения в Торгово-офисный центр Дубровка
Новость дня
Расширение возможностей для B2B-клиентов: Avito вводит новые услуги для строительства складов
На платформе Авито теперь доступна категория "Коммерческое строительство" в сегменте услуг, предлагающая широкий выбор специализированных работ и возведение объектов "под ключ" для бизнеса, что упрощает поиск подрядчиков и субподрядчиков для коммерческих проектов.
Все новости
30 апреля, четверг / Москва
"Бумеранг Капитал" увеличил свою долю в сети кафе-пекарен "Цех 85" до 50%
30 апреля, четверг / Ставропольский
В Кисловодске начался проект строительства инвестиционного отеля "Реликт"
30 апреля, четверг / Москва
Ресторан «Долина 5165» и магазин Sokolov теперь доступны посетителям ТРЦ Avenue Sever
30 апреля, четверг / Москва
"Новый флагманский магазин под названием «Флаувау» открыл свои двери на Мясницкой улице"
30 апреля, четверг / Москва
"Уровень вакансии на складах в Московском регионе достиг 5,4% из-за увеличения предложений по субаренде"
30 апреля, четверг / Москва
"Прогнозируется незначительный прирост числа туристов в первом квартале 2026 года - всего 2,8%"
30 апреля, четверг / Москва
Компания "Ориентир" планирует вложить до 150 млрд рублей в расширение бизнеса и развитие новых секторов.
30 апреля, четверг / Москва
"Завершено строительство наземной парковки на 400 автомобильных мест в парке «Ривер Парк Коломенское»"
30 апреля, четверг / Москва
Скорось открытия новых магазинов «Лэтуаль» снизится - 150 точек закроются к 2026 году.
30 апреля, четверг / Москва
Смайл-бар сети "Белая точка" теперь доступен посетителям ТЦ "Левел Причальный"
29 апреля, среда / Москва
Московский цех открыл производство 3D-принтеров для металлической печати.
29 апреля, среда / Москва
БМ-банк завершил продажу большей части площадей в ТЦ «Весна» на Новом Арбате.
29 апреля, среда / Москва
Перефразированное название: "Сеть магазинов 'Жизньмарт' возобновляет свою деятельность в Челябинске"
29 апреля, среда / Санкт-Петербург
Сервисный офис «Практик» начал свою работу на Октябрьской набережной в Санкт-Петербурге.
29 апреля, среда / Санкт-Петербург
Строительство складских помещений в Санкт-Петербурге и Ленинградской области увеличилось в 2,5 раза.
29 апреля, среда / Москва
Москва увеличила объем строительства в рамках программы МПТ до 9,5 миллионов квадратных метров
29 апреля, среда / Санкт-Петербург
Соседский центр "ЖИВИ Клуб" открыл свои двери в Новоселье
29 апреля, среда / Москва
"Завершено строительство пятиэтажной наземной парковки в районе Нагатинский Затон"
29 апреля, среда / Санкт-Петербург
Рекордный уровень строительства складов зафиксирован в Санкт-Петербурге и Ленинградской области
29 апреля, среда / Москва
Аренда складов в Москве снизилась на 25%