Снять торговое помещение 1340 м² в пгт Новоивановское
ID 1494957
Цена
3 270 332 ₽/мес
Ставка
29 287 ₽ / м² / год
Площадь
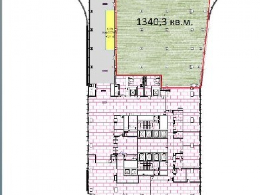
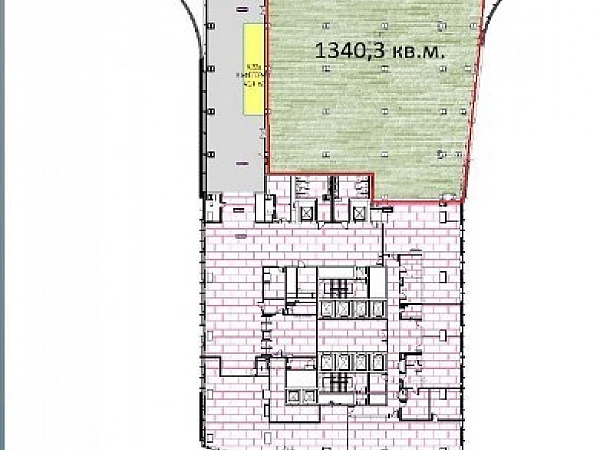
1340 м²
Этаж
3 из -
ИФНС
5032
агентство недвижимости
Московская обл, г Одинцово, рп Новоивановское, ул Западная, стр 181
На карте
Кунцевская
—
16 мин
Кунцевская
—
16 мин
Кунцевская
—
16 мин
Кунцевская
—
16 мин
Сколково
—
1 мин
Баковка
—
31 мин
Немчиновка
—
32 мин
Описание
Предложение в аренду № 63109.
Парковка: стихийная.
Предлагается в аренду помещение свободного назначения на 3 этаже в многофункциональном центре "ОРБИОН".
. Помещение готово к въезду.
.
. Многофункциональный комплекс ОРБИОН (Минское шоссе М-1, 3 км от МКАД, «Сколково» МЦД-1). Общая площадь объекта 65 128 кв. м, аренднопригодная площадь 38 145 кв. м (торговые площади 11 708 кв. м, офисы 26 437кв.м.). Парковка 353 машиномест (подземная 100 машиномест, наземная 253 машиноместа), 10 скоростных лифтов Thyssenkrupp (в том числе 2 панорамных • 2 грузопассажирских)
. панорамное остекление
. шаг колонн 9 метров
. введен в эксплуатацию: 3 квартал 2019 год
.
. Срок аренды :1-5 лет.
Торговая недвижимость, Street Retail. 1 линия домов. Витрины. Место для рекламы. Зона разгрузки. Проходное и проездное место.
Без комиссии.
Парковка: стихийная.
Предлагается в аренду помещение свободного назначения на 3 этаже в многофункциональном центре "ОРБИОН".
. Помещение готово к въезду.
.
. Многофункциональный комплекс ОРБИОН (Минское шоссе М-1, 3 км от МКАД, «Сколково» МЦД-1). Общая площадь объекта 65 128 кв. м, аренднопригодная площадь 38 145 кв. м (торговые площади 11 708 кв. м, офисы 26 437кв.м.). Парковка 353 машиномест (подземная 100 машиномест, наземная 253 машиноместа), 10 скоростных лифтов Thyssenkrupp (в том числе 2 панорамных • 2 грузопассажирских)
. панорамное остекление
. шаг колонн 9 метров
. введен в эксплуатацию: 3 квартал 2019 год
.
. Срок аренды :1-5 лет.
Торговая недвижимость, Street Retail. 1 линия домов. Витрины. Место для рекламы. Зона разгрузки. Проходное и проездное место.
Без комиссии.
Расположение
Московская обл, г Одинцово, рп Новоивановское, ул Западная, стр 181
Кунцевская
—
16 мин
Кунцевская
—
16 мин
Кунцевская
—
16 мин
Кунцевская
—
16 мин
Сколково
—
1 мин
Баковка
—
31 мин
Немчиновка
—
32 мин
Технические характеристики
Параметры
Статус владельца объявления
агентство
Новость дня
Расширение возможностей для B2B-клиентов: Avito вводит новые услуги для строительства складов
На платформе Авито теперь доступна категория "Коммерческое строительство" в сегменте услуг, предлагающая широкий выбор специализированных работ и возведение объектов "под ключ" для бизнеса, что упрощает поиск подрядчиков и субподрядчиков для коммерческих проектов.
Все новости
30 апреля, четверг / Москва
"Бумеранг Капитал" увеличил свою долю в сети кафе-пекарен "Цех 85" до 50%
30 апреля, четверг / Ставропольский
В Кисловодске начался проект строительства инвестиционного отеля "Реликт"
30 апреля, четверг / Москва
Ресторан «Долина 5165» и магазин Sokolov теперь доступны посетителям ТРЦ Avenue Sever
30 апреля, четверг / Москва
"Новый флагманский магазин под названием «Флаувау» открыл свои двери на Мясницкой улице"
30 апреля, четверг / Москва
"Уровень вакансии на складах в Московском регионе достиг 5,4% из-за увеличения предложений по субаренде"
30 апреля, четверг / Москва
"Прогнозируется незначительный прирост числа туристов в первом квартале 2026 года - всего 2,8%"
30 апреля, четверг / Москва
Компания "Ориентир" планирует вложить до 150 млрд рублей в расширение бизнеса и развитие новых секторов.
30 апреля, четверг / Москва
"Завершено строительство наземной парковки на 400 автомобильных мест в парке «Ривер Парк Коломенское»"
30 апреля, четверг / Москва
Скорось открытия новых магазинов «Лэтуаль» снизится - 150 точек закроются к 2026 году.
30 апреля, четверг / Москва
Смайл-бар сети "Белая точка" теперь доступен посетителям ТЦ "Левел Причальный"
29 апреля, среда / Москва
Московский цех открыл производство 3D-принтеров для металлической печати.
29 апреля, среда / Москва
БМ-банк завершил продажу большей части площадей в ТЦ «Весна» на Новом Арбате.
29 апреля, среда / Москва
Перефразированное название: "Сеть магазинов 'Жизньмарт' возобновляет свою деятельность в Челябинске"
29 апреля, среда / Санкт-Петербург
Сервисный офис «Практик» начал свою работу на Октябрьской набережной в Санкт-Петербурге.
29 апреля, среда / Санкт-Петербург
Строительство складских помещений в Санкт-Петербурге и Ленинградской области увеличилось в 2,5 раза.
29 апреля, среда / Москва
Москва увеличила объем строительства в рамках программы МПТ до 9,5 миллионов квадратных метров
29 апреля, среда / Санкт-Петербург
Соседский центр "ЖИВИ Клуб" открыл свои двери в Новоселье
29 апреля, среда / Москва
"Завершено строительство пятиэтажной наземной парковки в районе Нагатинский Затон"
29 апреля, среда / Санкт-Петербург
Рекордный уровень строительства складов зафиксирован в Санкт-Петербурге и Ленинградской области
29 апреля, среда / Москва
Аренда складов в Москве снизилась на 25%