Описание
Предлагается на продажу помещение свободного назначения в нежилом, отдельно стоящем здании (бывший детский сад), расположенном в Алтуфьевском районе (СВАО) в шаговой доступности от станции метро Бибирево. Вторая линия домов.
Общая площадь : 2820 м²
Наземная площадь : 1763 м²
Наземная без лестниц : 1693 м²
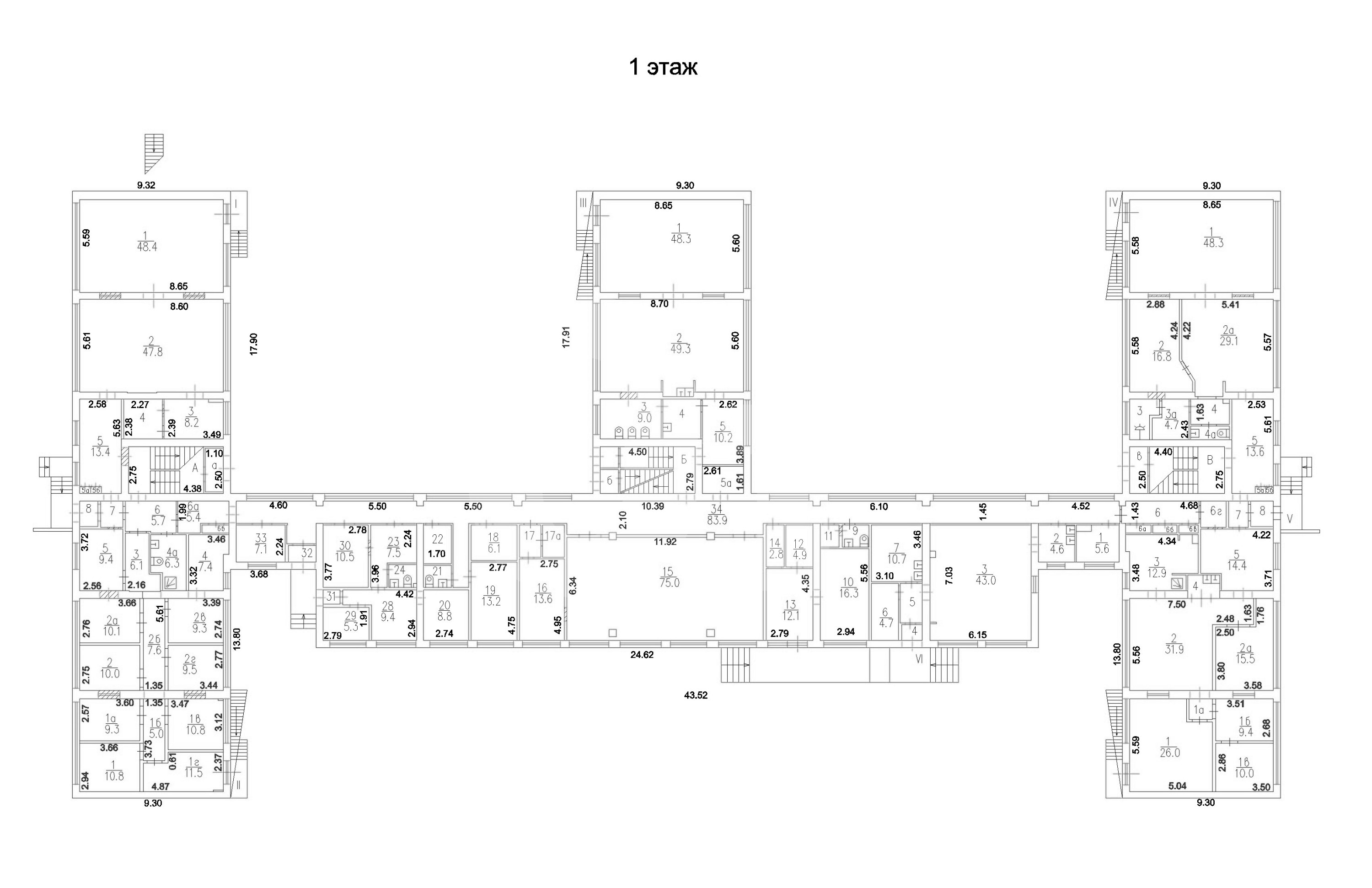
0 этаж : 1057 м² (высота потолков 190)
1 этаж : 1065 м² (высота потолков 300)
2 этаж : 698 м² (высота потолков 300)
Земельный участок : 3676 м²
Вид права : аренда до 2063 года
ВРИ : размещения учреждений дошкольного воспитания (1.2.17) размещения коммерческих организаций, не связанных с проживанием населения (1.2.7)
- Год постройки : 1983
- Наружные стены : крупнопанельные
- Перекрытия : железобетонные
- Наземная парковка : 10 м/м
- Мощность электричества : 124 кВт
Все сети центральные, от города. Состояние отделки требует ремонта. Не является эффективным арендным бизнесом. В настоящее время сдается в аренду одному арендатору. Договор аренды краткосрочный. Арендуемая площадь 1726 м². Общая выручка 17.8 млн. в год. Продажа объекта недвижимости по ДКП. В стоимость включен НДС.
Агентства просьба не беспокоить! >ID объекта - 54261
Общая площадь : 2820 м²
Наземная площадь : 1763 м²
Наземная без лестниц : 1693 м²
0 этаж : 1057 м² (высота потолков 190)
1 этаж : 1065 м² (высота потолков 300)
2 этаж : 698 м² (высота потолков 300)
Земельный участок : 3676 м²
Вид права : аренда до 2063 года
ВРИ : размещения учреждений дошкольного воспитания (1.2.17) размещения коммерческих организаций, не связанных с проживанием населения (1.2.7)
- Год постройки : 1983
- Наружные стены : крупнопанельные
- Перекрытия : железобетонные
- Наземная парковка : 10 м/м
- Мощность электричества : 124 кВт
Все сети центральные, от города. Состояние отделки требует ремонта. Не является эффективным арендным бизнесом. В настоящее время сдается в аренду одному арендатору. Договор аренды краткосрочный. Арендуемая площадь 1726 м². Общая выручка 17.8 млн. в год. Продажа объекта недвижимости по ДКП. В стоимость включен НДС.
Агентства просьба не беспокоить! >ID объекта - 54261
Расположение
г Москва, ул Бибиревская, д 17Б
Алтуфьево
—
7 мин
Бибирево
—
4 мин
Отрадное
—
7 мин
Бескудниково
—
23 мин
Технические характеристики
Параметры
Статус владельца объявления
агентство
Класс
c
Новость дня
Расширение возможностей для B2B-клиентов: Avito вводит новые услуги для строительства складов
На платформе Авито теперь доступна категория "Коммерческое строительство" в сегменте услуг, предлагающая широкий выбор специализированных работ и возведение объектов "под ключ" для бизнеса, что упрощает поиск подрядчиков и субподрядчиков для коммерческих проектов.
Все новости
30 апреля, четверг / Москва
"Бумеранг Капитал" увеличил свою долю в сети кафе-пекарен "Цех 85" до 50%
30 апреля, четверг / Ставропольский
В Кисловодске начался проект строительства инвестиционного отеля "Реликт"
30 апреля, четверг / Москва
Ресторан «Долина 5165» и магазин Sokolov теперь доступны посетителям ТРЦ Avenue Sever
30 апреля, четверг / Москва
"Новый флагманский магазин под названием «Флаувау» открыл свои двери на Мясницкой улице"
30 апреля, четверг / Москва
"Уровень вакансии на складах в Московском регионе достиг 5,4% из-за увеличения предложений по субаренде"
30 апреля, четверг / Москва
"Прогнозируется незначительный прирост числа туристов в первом квартале 2026 года - всего 2,8%"
30 апреля, четверг / Москва
Компания "Ориентир" планирует вложить до 150 млрд рублей в расширение бизнеса и развитие новых секторов.
30 апреля, четверг / Москва
"Завершено строительство наземной парковки на 400 автомобильных мест в парке «Ривер Парк Коломенское»"
30 апреля, четверг / Москва
Скорось открытия новых магазинов «Лэтуаль» снизится - 150 точек закроются к 2026 году.
30 апреля, четверг / Москва
Смайл-бар сети "Белая точка" теперь доступен посетителям ТЦ "Левел Причальный"
29 апреля, среда / Москва
Московский цех открыл производство 3D-принтеров для металлической печати.
29 апреля, среда / Москва
БМ-банк завершил продажу большей части площадей в ТЦ «Весна» на Новом Арбате.
29 апреля, среда / Москва
Перефразированное название: "Сеть магазинов 'Жизньмарт' возобновляет свою деятельность в Челябинске"
29 апреля, среда / Санкт-Петербург
Сервисный офис «Практик» начал свою работу на Октябрьской набережной в Санкт-Петербурге.
29 апреля, среда / Санкт-Петербург
Строительство складских помещений в Санкт-Петербурге и Ленинградской области увеличилось в 2,5 раза.
29 апреля, среда / Москва
Москва увеличила объем строительства в рамках программы МПТ до 9,5 миллионов квадратных метров
29 апреля, среда / Санкт-Петербург
Соседский центр "ЖИВИ Клуб" открыл свои двери в Новоселье
29 апреля, среда / Москва
"Завершено строительство пятиэтажной наземной парковки в районе Нагатинский Затон"
29 апреля, среда / Санкт-Петербург
Рекордный уровень строительства складов зафиксирован в Санкт-Петербурге и Ленинградской области
29 апреля, среда / Москва
Аренда складов в Москве снизилась на 25%