Описание
Предложение на продажу № 58817.
Парковка: только городская.
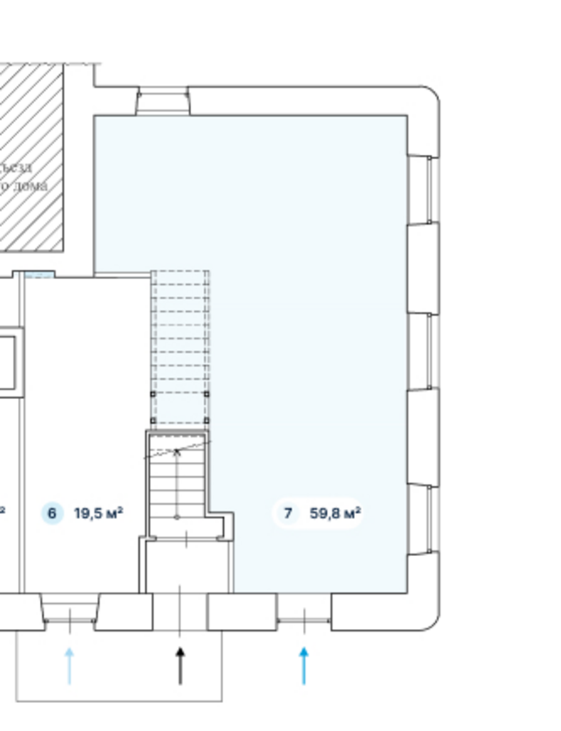
Продажа помещения свободного назначения, ул. Яблочкова, 12 (70 м²)
.
. 1. Локация и трафик
. * расположен у пешеходного перехода — максимальный пешеходный трафик
. * между тремя остановками общественного транспорта разных маршрутов
. * в шаговой доступности от ст. м. «Тимирязевская»
. * рядом — конечные станции монорельса и автобусного маршрута
. * высокая проходимость обеспечивает стабильный поток потенциальных клиентов.
.
. 2. Характеристики помещения
. * площадь: 70 м²
. * два отдельных входа — возможность разделить пространство на две независимые торговые точки (по 35 м² каждая)
. * текущее использование: аренда под аптеку (13 лет без перебоев)
. * действующий договор аренды: срок — 11 месяцев
. * подходит для торговли, сервиса или общепита.
.
. 3. Инвестиционная привлекательность
. * двойная входная группа — гибкость в использовании (два независимых бизнеса на одной площади)
. * локация с огромным трафиком — гарантия высокой посещаемости
. * близость к метро и транспортным узлам — удобство для клиентов и сотрудников
. * потенциал для увеличения доходности при смене арендатора или разделении площади.
.
.
. Возможные варианты использования
. * аптека (текущий арендатор МАП 220тыс на коротком договоре)
. * магазин (продуктовый, бытовой техники, одежды и т. п.)
. * пункт выдачи заказов ПВЗ (маркетплейсы, онлайн‑магазины)
. * салон услуг (косметический, парикмахерский, ремонт техники)
. * кафе или точка быстрого питания
. * офис или клиентский центр.
.
. Для уточнения деталей и организации просмотра — свяжитесь с нами. Спасибо.
Торговая недвижимость, Street Retail. 1 линия домов. Витрины. Место для рекламы. Проходное и проездное место.
Без комиссии.
Парковка: только городская.
Продажа помещения свободного назначения, ул. Яблочкова, 12 (70 м²)
.
. 1. Локация и трафик
. * расположен у пешеходного перехода — максимальный пешеходный трафик
. * между тремя остановками общественного транспорта разных маршрутов
. * в шаговой доступности от ст. м. «Тимирязевская»
. * рядом — конечные станции монорельса и автобусного маршрута
. * высокая проходимость обеспечивает стабильный поток потенциальных клиентов.
.
. 2. Характеристики помещения
. * площадь: 70 м²
. * два отдельных входа — возможность разделить пространство на две независимые торговые точки (по 35 м² каждая)
. * текущее использование: аренда под аптеку (13 лет без перебоев)
. * действующий договор аренды: срок — 11 месяцев
. * подходит для торговли, сервиса или общепита.
.
. 3. Инвестиционная привлекательность
. * двойная входная группа — гибкость в использовании (два независимых бизнеса на одной площади)
. * локация с огромным трафиком — гарантия высокой посещаемости
. * близость к метро и транспортным узлам — удобство для клиентов и сотрудников
. * потенциал для увеличения доходности при смене арендатора или разделении площади.
.
.
. Возможные варианты использования
. * аптека (текущий арендатор МАП 220тыс на коротком договоре)
. * магазин (продуктовый, бытовой техники, одежды и т. п.)
. * пункт выдачи заказов ПВЗ (маркетплейсы, онлайн‑магазины)
. * салон услуг (косметический, парикмахерский, ремонт техники)
. * кафе или точка быстрого питания
. * офис или клиентский центр.
.
. Для уточнения деталей и организации просмотра — свяжитесь с нами. Спасибо.
Торговая недвижимость, Street Retail. 1 линия домов. Витрины. Место для рекламы. Проходное и проездное место.
Без комиссии.
Расположение
г Москва, ул Яблочкова, д 12
Тимирязевская
—
5 мин
Тимирязевская
—
5 мин
Технические характеристики
Параметры
Статус владельца объявления
агентство
Новость дня
Расширение возможностей для B2B-клиентов: Avito вводит новые услуги для строительства складов
На платформе Авито теперь доступна категория "Коммерческое строительство" в сегменте услуг, предлагающая широкий выбор специализированных работ и возведение объектов "под ключ" для бизнеса, что упрощает поиск подрядчиков и субподрядчиков для коммерческих проектов.
Все новости
Вчера — 30 апреля, четверг / Москва
"Бумеранг Капитал" увеличил свою долю в сети кафе-пекарен "Цех 85" до 50%
Вчера — 30 апреля, четверг / Ставропольский
В Кисловодске начался проект строительства инвестиционного отеля "Реликт"
Вчера — 30 апреля, четверг / Москва
Ресторан «Долина 5165» и магазин Sokolov теперь доступны посетителям ТРЦ Avenue Sever
Вчера — 30 апреля, четверг / Москва
"Новый флагманский магазин под названием «Флаувау» открыл свои двери на Мясницкой улице"
Вчера — 30 апреля, четверг / Москва
"Уровень вакансии на складах в Московском регионе достиг 5,4% из-за увеличения предложений по субаренде"
Вчера — 30 апреля, четверг / Москва
"Прогнозируется незначительный прирост числа туристов в первом квартале 2026 года - всего 2,8%"
Вчера — 30 апреля, четверг / Москва
Компания "Ориентир" планирует вложить до 150 млрд рублей в расширение бизнеса и развитие новых секторов.
Вчера — 30 апреля, четверг / Москва
"Завершено строительство наземной парковки на 400 автомобильных мест в парке «Ривер Парк Коломенское»"
Вчера — 30 апреля, четверг / Москва
Скорось открытия новых магазинов «Лэтуаль» снизится - 150 точек закроются к 2026 году.
Вчера — 30 апреля, четверг / Москва
Смайл-бар сети "Белая точка" теперь доступен посетителям ТЦ "Левел Причальный"
29 апреля, среда / Москва
Московский цех открыл производство 3D-принтеров для металлической печати.
29 апреля, среда / Москва
БМ-банк завершил продажу большей части площадей в ТЦ «Весна» на Новом Арбате.
29 апреля, среда / Москва
Перефразированное название: "Сеть магазинов 'Жизньмарт' возобновляет свою деятельность в Челябинске"
29 апреля, среда / Санкт-Петербург
Сервисный офис «Практик» начал свою работу на Октябрьской набережной в Санкт-Петербурге.
29 апреля, среда / Санкт-Петербург
Строительство складских помещений в Санкт-Петербурге и Ленинградской области увеличилось в 2,5 раза.
29 апреля, среда / Москва
Москва увеличила объем строительства в рамках программы МПТ до 9,5 миллионов квадратных метров
29 апреля, среда / Санкт-Петербург
Соседский центр "ЖИВИ Клуб" открыл свои двери в Новоселье
29 апреля, среда / Москва
"Завершено строительство пятиэтажной наземной парковки в районе Нагатинский Затон"
29 апреля, среда / Санкт-Петербург
Рекордный уровень строительства складов зафиксирован в Санкт-Петербурге и Ленинградской области
29 апреля, среда / Москва
Аренда складов в Москве снизилась на 25%