Купить ПСН 2330 м²
ID 1590732
Цена
685 000 000 ₽
Ставка
293 991 ₽ / м²
Площадь
2330 м²
Этаж
1 из -
ИФНС
7713
агентство недвижимости
г Москва, км МКАД 78-й, д 2Б
На карте
Ховрино
—
15 мин
Ховрино
—
15 мин
Левобережная
—
13 мин
Описание
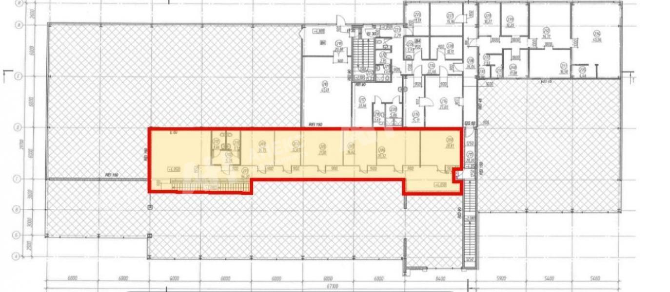
Лот №1025204 Предлагается к продаже здание автосалона общей площадью 2329,2 м². Объект включает два этажа, два шоу-рума площадью 506,8 м² и 300,3 м², а также станцию технического обслуживания площадью 576,41 м².
Здание расположено на внутренней стороне МКАД вблизи развязки с Северо-Восточной хордой Московского скоростного диаметра. В настоящее время объект сдан в долгосрочную аренду официальному дилеру Chery. В радиусе 1 км находятся автосалоны таких марок, как Changan, Geely, Jetour, GAC, ГАЗ, УАЗ.
Обеспечены удобные подъездные пути: заезды с Бусиновской эстакады, а также доступ с МКАД по рокадной дороге в 300 метрах от объекта.
Здание размещено на земельном участке площадью 5500 м², аренда которого действует до 2065 года. В наличии все необходимые коммуникации: водо- и электроснабжение, канализация, отопление, вентиляция и кондиционирование.
Чтобы получить ПОДРОБНУЮ ПРЕЗЕНТАЦИЮ С ПЛАНИРОВКОЙ И ФОТОГРАФИЯМИ на этот объект, звоните. Высылаем в течение 15 минут по запросу!
☎ Конт. лицо: Валентин , доб. 215, ЛОТ №1025204
Здание расположено на внутренней стороне МКАД вблизи развязки с Северо-Восточной хордой Московского скоростного диаметра. В настоящее время объект сдан в долгосрочную аренду официальному дилеру Chery. В радиусе 1 км находятся автосалоны таких марок, как Changan, Geely, Jetour, GAC, ГАЗ, УАЗ.
Обеспечены удобные подъездные пути: заезды с Бусиновской эстакады, а также доступ с МКАД по рокадной дороге в 300 метрах от объекта.
Здание размещено на земельном участке площадью 5500 м², аренда которого действует до 2065 года. В наличии все необходимые коммуникации: водо- и электроснабжение, канализация, отопление, вентиляция и кондиционирование.
Чтобы получить ПОДРОБНУЮ ПРЕЗЕНТАЦИЮ С ПЛАНИРОВКОЙ И ФОТОГРАФИЯМИ на этот объект, звоните. Высылаем в течение 15 минут по запросу!
☎ Конт. лицо: Валентин , доб. 215, ЛОТ №1025204
Расположение
г Москва, км МКАД 78-й, д 2Б
Ховрино
—
15 мин
Ховрино
—
15 мин
Левобережная
—
13 мин
Технические характеристики
Параметры
Статус владельца объявления
агентство
Новость дня
Расширение возможностей для B2B-клиентов: Avito вводит новые услуги для строительства складов
На платформе Авито теперь доступна категория "Коммерческое строительство" в сегменте услуг, предлагающая широкий выбор специализированных работ и возведение объектов "под ключ" для бизнеса, что упрощает поиск подрядчиков и субподрядчиков для коммерческих проектов.
Все новости
Вчера — 6 мая, среда / Москва
Рекордное количество офисных помещений введено в Москве за первый квартал текущего года.
Вчера — 6 мая, среда / Москва
"Сокращение объемов складских помещений в Московском регионе достигло 14% за первый квартал"
Вчера — 6 мая, среда / Москва
Лишь 10% жилых комплексов располагаются вблизи берега Москвы-реки.
Вчера — 6 мая, среда / Москва
Цены на отели в Москве снизились впервые за два года
Вчера — 6 мая, среда / Карачаево-Черкесская
Капиталовложения в размере 5,83 млрд рублей на развитие курорта "Альто" на Домбае от компании "Плато Девелопмент"
Вчера — 6 мая, среда / Москва
Строительство склада площадью 80 тыс. кв. м для Ozon в Пушкино будет осуществлено компанией NK Group.
Вчера — 6 мая, среда / Санкт-Петербург
«Дача Фаберже в Санкт-Петербурге будет продана на аукционе компанией «Дом.РФ»»
Вчера — 6 мая, среда / Москва
Строительство коммерческих объектов в Москве упало на 91% за год
Вчера — 6 мая, среда / Москва
Как в Москве за первый квартал 2026 года построили 5,433 тыс. кв. м офисов, готовых к адаптации.
Вчера — 6 мая, среда / Санкт-Петербург
Продуктовые сети в России увеличили свои площади в торгово-развлекательном центре Петербурга на треть за последние 6 лет.
Вчера — 6 мая, среда / Москва
С начала года в Москве получили разрешение на строительство более 130 недвижимостей.
5 мая, вторник / Москва
"Сбербанк и Альфа-банк подали в суд на производителя обоев «Артекс» с требованием объявить его банкротом"
5 мая, вторник / Красноярский
"Магазин «ВкусВилл» открыл отдел shop-in-shop в Красноярске через партнерство"
5 мая, вторник / Адыгея
Строительство жилого комплекса на территории туристического парка "Дегуакская поляна" в Адыгее начнется архитектурным проектом от "Семьи" объемом 360 тыс. квадратных метров.
5 мая, вторник / Москва
"Прогнозируется достижение рекордной площади 500 тыс. кв. м под light industrial в Московском регионе к 2026 году"
5 мая, вторник / Астраханская
Фитнес-клуб DDX Fitness открылся в Торгово-Развлекательном Центре «Ярмарка» в городе Астрахань.
5 мая, вторник / Москва
"Объем спроса на офисные помещения в Москве сократился вдвое за последний год"
5 мая, вторник / Москва
"Рост стоимости отделки офисов в Москве превышает уровень инфляции"
5 мая, вторник / Москва
В России впервые за 20 лет не было открыто ни одной новой гостиницы в первом квартале
5 мая, вторник / Москва
Спрос на услуги аренды апартаментов в Санкт-Петербурге упал на четверть.