Описание
Продаётся отличная 2-комнатная квартира в монолитном доме 2001 года постройки от застройщика "КРОСТ".
- Адрес: Москва, Волоколамское шоссе, дом 60, корпус 2
- Этаж: комфортный 4-й этаж
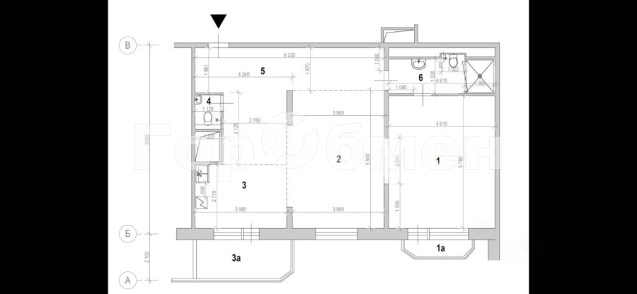
- Общая площадь:*96 м² (на данный момент, с учетом состояния «бетон», площадь увеличилась до 102 м²)
- Планировка: Согласно приложенным фото (просторная и удобная, с возможностью реализации различных вариантов отделки)
Особенности жилого комплекса и территория:**
- Охрана: круглосуточная охрана на въезде на территорию и у входа в дом для максимальной безопасности жильцов
- Огороженная территория: собственная закрытая зона с благоустроенными спортивными и детскими площадками
- Парковка: выделенное парковочное место входит в стоимость квартиры, что избавит вас от проблем с парковкой
- **Дом:** построен по монолитной технологии, что обеспечивает надежность и хорошую звукоизоляцию
Инфраструктура и местоположение:
- Район с развитой инфраструктурой — рядом магазины, школы, детские сады, медицинские учреждения
- Очень удобное транспортное сообщение: быстрый доступ как в центр Москвы, так и в область
- Экологически чистый и зелёный район с большим парком Побровское-Стрешнево рядом — идеальное место для прогулок и отдыха на свежем воздухе!
- Адрес: Москва, Волоколамское шоссе, дом 60, корпус 2
- Этаж: комфортный 4-й этаж
- Общая площадь:*96 м² (на данный момент, с учетом состояния «бетон», площадь увеличилась до 102 м²)
- Планировка: Согласно приложенным фото (просторная и удобная, с возможностью реализации различных вариантов отделки)
Особенности жилого комплекса и территория:**
- Охрана: круглосуточная охрана на въезде на территорию и у входа в дом для максимальной безопасности жильцов
- Огороженная территория: собственная закрытая зона с благоустроенными спортивными и детскими площадками
- Парковка: выделенное парковочное место входит в стоимость квартиры, что избавит вас от проблем с парковкой
- **Дом:** построен по монолитной технологии, что обеспечивает надежность и хорошую звукоизоляцию
Инфраструктура и местоположение:
- Район с развитой инфраструктурой — рядом магазины, школы, детские сады, медицинские учреждения
- Очень удобное транспортное сообщение: быстрый доступ как в центр Москвы, так и в область
- Экологически чистый и зелёный район с большим парком Побровское-Стрешнево рядом — идеальное место для прогулок и отдыха на свежем воздухе!
Расположение
г Москва, ш Волоколамское, д 60 к 2
Щукинская
—
15 мин
Покровское-Стрешнево
—
10 мин
Технические характеристики
Параметры
Тип сделки
прямая продажа
Тип здания
кирпичный
Новость дня
Все новости
Вчера — 23 апреля, четверг / Москва
STONE предлагает комплексный ремонт офисных помещений по цене от 85 тыс. руб. за квадратный метр.
Вчера — 23 апреля, четверг / Краснодарский
"Продаётся агрокомбинат «Тепличный» в Краснодаре за 2,8 млрд рублей"
Вчера — 23 апреля, четверг / Москва
Nike увеличил срок действия исключительных прав на свои бренды в России до 2036 года
Вчера — 23 апреля, четверг / Москва
Расширение площади флагманского магазина AMAZING RED в ТРЦ "Авиапарк"
Вчера — 23 апреля, четверг / Москва
"Магазин «Азбука вкуса» теперь работает круглосуточно в ЖК «Остров»"
Вчера — 23 апреля, четверг / Москва
"Появится комьюнити-центр с крышным огородом в районе Прокшино"
Вчера — 23 апреля, четверг / Москва
"Разработчик жилищного проекта "Дом.РФ" продал земельные участки общей площадью 175 гектаров в 24 регионах за первый квартал"
Вчера — 23 апреля, четверг / Москва
"Снижение инвестиций в коммерческую недвижимость России в первом квартале на 64%"
Вчера — 23 апреля, четверг / Татарстан
В Казани будет возведен самый просторный президентский люкс России
Вчера — 23 апреля, четверг / Москва
В галерее «Чкалов» появились уголки с итальянскими и паназиатскими блюдами.
22 апреля, среда / Москва
STENOY получила разрешение на строительство бизнес-центра EDEL.
22 апреля, среда / Москва
"Развитие торговой недвижимости в Дубае: рынок торговых центров активно расширяется"
22 апреля, среда / Москва
"Завершено строительство первого здания в логопарке 'Парк Шишкин Лес'"
22 апреля, среда / Москва
Объем складских помещений в странах Центральной Азии, Закавказья и Беларуси достиг 5 миллионов квадратных метров.
22 апреля, среда / Москва
"Сеть магазинов "ВкусВилл" закрыла свой единственный магазин косметики под названием "ВкусВилл Красиво""
22 апреля, среда / Москва
"Сайт «Дом.РФ» получил в собственность земельные участки общей площадью 233 га и недвижимость площадью 62,4 тыс. кв. м в пяти регионах"
22 апреля, среда / Псковская
Продается здание XVII века в центре Пскова на портале «Дом.РФ» за 3,94 млн рублей
22 апреля, среда / Москва
Предполагается, что количество высококачественных отелей в Москве увеличится на 5% к 2026 году.
22 апреля, среда / Москва
Недострой в Замоскворечье будет преобразован в благоустроенную территорию.
22 апреля, среда / Москва
ГК "Основа" запустила новый термальный комплекс "Термолэнд" в городе Красноярск.