Главная
Купить торговое помещение в Москве и МО
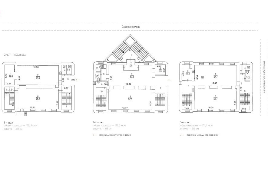
Торговое помещение 1184 м² в особняке на Садовнической 84
Купить торговое помещение 1184 м² в особняке на Садовнической 84
ID 1637714
Цена
650 000 000 ₽
Ставка
548 986 ₽ / м²
Площадь
1184 м²
Этаж
1 из 3
ИФНС
7705
агентство недвижимости
г Москва, ул Садовническая, д 84 стр 7
На карте
Павелецкая
—
5 мин
Павелецкая
—
5 мин
Таганская
—
11 мин
Описание
Номер лота на нашем сайте: 45092.
Продажа особняка 1 184 м² | Садовое кольцо Продается отдельно стоящий особняк в центре Москвы на первой линии Садового кольца. Метро Павелецкая 5 минут пешком
Рядом ТРЦ Павелецкая Плаза Параметры: 1 184,3 м² 2 строения (по ЕГРН), единый объект Летняя веранда 200 м² Свободная планировка 220 кВт Центральные коммуникации 4 отдельных входа
Парковка Высокий рекламный потенциал и отличная просматриваемость. Возможность увеличения доходности за счет арендаторов
Продажа особняка 1 184 м² | Садовое кольцо Продается отдельно стоящий особняк в центре Москвы на первой линии Садового кольца. Метро Павелецкая 5 минут пешком
Рядом ТРЦ Павелецкая Плаза Параметры: 1 184,3 м² 2 строения (по ЕГРН), единый объект Летняя веранда 200 м² Свободная планировка 220 кВт Центральные коммуникации 4 отдельных входа
Парковка Высокий рекламный потенциал и отличная просматриваемость. Возможность увеличения доходности за счет арендаторов
Расположение
г Москва, ул Садовническая, д 84 стр 7
Павелецкая
—
5 мин
Павелецкая
—
5 мин
Таганская
—
11 мин
Технические характеристики
Параметры
Электричество
есть
Свободные помещения в Особняк на Садовнической 84
Новость дня
Все новости
Сегодня — 29 апреля, среда / Москва
Московский цех открыл производство 3D-принтеров для металлической печати.
Сегодня — 29 апреля, среда / Москва
БМ-банк завершил продажу большей части площадей в ТЦ «Весна» на Новом Арбате.
Сегодня — 29 апреля, среда / Москва
Перефразированное название: "Сеть магазинов 'Жизньмарт' возобновляет свою деятельность в Челябинске"
Сегодня — 29 апреля, среда / Санкт-Петербург
Сервисный офис «Практик» начал свою работу на Октябрьской набережной в Санкт-Петербурге.
Сегодня — 29 апреля, среда / Санкт-Петербург
Строительство складских помещений в Санкт-Петербурге и Ленинградской области увеличилось в 2,5 раза.
Сегодня — 29 апреля, среда / Москва
Москва увеличила объем строительства в рамках программы МПТ до 9,5 миллионов квадратных метров
Сегодня — 29 апреля, среда / Санкт-Петербург
Соседский центр "ЖИВИ Клуб" открыл свои двери в Новоселье
Сегодня — 29 апреля, среда / Москва
"Завершено строительство пятиэтажной наземной парковки в районе Нагатинский Затон"
Сегодня — 29 апреля, среда / Санкт-Петербург
Рекордный уровень строительства складов зафиксирован в Санкт-Петербурге и Ленинградской области
Сегодня — 29 апреля, среда / Москва
Аренда складов в Москве снизилась на 25%
Вчера — 28 апреля, вторник / Москва
"Появление двух новых брендов на российском рынке в начале 2026 года"
Вчера — 28 апреля, вторник / Москва
27-этажный бизнес-центр класса А в Коммунарке завершает процесс утверждения своего архитектурного дизайна
Вчера — 28 апреля, вторник / Москва
Перефразированное название статьи: "Открытие первого флагманского магазина Lumique в «Авиапарке»"
Вчера — 28 апреля, вторник / Москва
"Подольская фабрика офсетной печати выставляет на приватизацию 49% своих акций"
Вчера — 28 апреля, вторник / Москва
Самострои в ЮВАО: площадь почти 4 тыс. кв. м за первый квартал
Вчера — 28 апреля, вторник / Москва
Иск на 11,7 млрд рублей подан банком «Санкт-Петербург» к структуре «Гранели»
Вчера — 28 апреля, вторник / Москва
"«Яндекс Фабрика» запускает цепь офлайн-магазинов в Москве"
Вчера — 28 апреля, вторник / Москва
Детская сеть магазинов "Кораблик" столкнулась с финансовыми трудностями
Вчера — 28 апреля, вторник / Москва
Снижение загрузки премиум отелей Москвы в первом квартале до 69,4%
Вчера — 28 апреля, вторник / Крым
"Продается комплекс солнечных электростанций на полуострове Крым"