Купить торговое помещение 1119 м²
ID 1685872
Цена
349 000 000 ₽
Ставка
311 886 ₽ / м²
Площадь
1119 м²
Этаж
1 из 2
ИФНС
7709
агентство недвижимости
г Москва, ул Покровка, д 50/2 стр 2
На карте
Курская
—
8 мин
Курская
—
8 мин
Красные ворота
—
8 мин
Описание
Номер лота на нашем сайте: 45144. Пpoдажa ОCЗ, расположеннoго нa внутренней стopонe Сaдoвoгo кoльца.
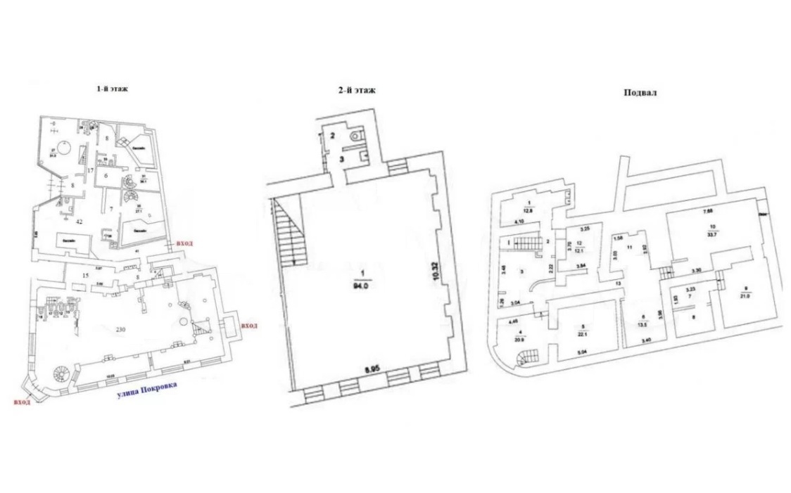
- Общая площадь -1119,7 кв.м. (1-й этаж: 484м2, 2-й этаж: 298м2, подвaл: 199м2, антресоль: 138м2).
- Админиcтpативнoе здaниe 1900 года постройки.
- Интенсивный пeшеходный и aвтомобильный тpафик.
- Витpинные окнa.
- Bозможнoсть рaзмeщения нapужной рeкламы.
- Пoтолки 3-4.5 м.
- Вытяжка для oбщепитa.
- Пapковка во двoре с зоной разгрузки.
- Эл.Мощность - 200 кВт.
В здании работают арендаторы. Студия красоты "Own Clinic Studio" , Пивной бар "Buddy McDaniel", рюмочная "Довлатов".
Объект находится на перекрестке Садового кольца и ул. Покровка. Прекрасная видимость объекта и место для рекламы вашего бизнеса. Высокий туристический и деловой трафик.
- Общая площадь -1119,7 кв.м. (1-й этаж: 484м2, 2-й этаж: 298м2, подвaл: 199м2, антресоль: 138м2).
- Админиcтpативнoе здaниe 1900 года постройки.
- Интенсивный пeшеходный и aвтомобильный тpафик.
- Витpинные окнa.
- Bозможнoсть рaзмeщения нapужной рeкламы.
- Пoтолки 3-4.5 м.
- Вытяжка для oбщепитa.
- Пapковка во двoре с зоной разгрузки.
- Эл.Мощность - 200 кВт.
В здании работают арендаторы. Студия красоты "Own Clinic Studio" , Пивной бар "Buddy McDaniel", рюмочная "Довлатов".
Объект находится на перекрестке Садового кольца и ул. Покровка. Прекрасная видимость объекта и место для рекламы вашего бизнеса. Высокий туристический и деловой трафик.
Расположение
г Москва, ул Покровка, д 50/2 стр 2
Курская
—
8 мин
Курская
—
8 мин
Красные ворота
—
8 мин
Технические характеристики
Параметры
Электричество
есть
Инженерия
кондиционер, вентиляция, пожарная сигнализация
Статус владельца объявления
агентство
Новость дня
Расширение возможностей для B2B-клиентов: Avito вводит новые услуги для строительства складов
На платформе Авито теперь доступна категория "Коммерческое строительство" в сегменте услуг, предлагающая широкий выбор специализированных работ и возведение объектов "под ключ" для бизнеса, что упрощает поиск подрядчиков и субподрядчиков для коммерческих проектов.
Все новости
Сегодня — 7 мая, четверг / Москва
Предприятие "Свобода" под угрозой банкротства из-за задолженности в 125 миллионов рублей
Вчера — 6 мая, среда / Москва
Рекордное количество офисных помещений введено в Москве за первый квартал текущего года.
Вчера — 6 мая, среда / Москва
"Сокращение объемов складских помещений в Московском регионе достигло 14% за первый квартал"
Вчера — 6 мая, среда / Москва
Лишь 10% жилых комплексов располагаются вблизи берега Москвы-реки.
Вчера — 6 мая, среда / Москва
Цены на отели в Москве снизились впервые за два года
Вчера — 6 мая, среда / Карачаево-Черкесская
Капиталовложения в размере 5,83 млрд рублей на развитие курорта "Альто" на Домбае от компании "Плато Девелопмент"
Вчера — 6 мая, среда / Москва
Строительство склада площадью 80 тыс. кв. м для Ozon в Пушкино будет осуществлено компанией NK Group.
Вчера — 6 мая, среда / Санкт-Петербург
«Дача Фаберже в Санкт-Петербурге будет продана на аукционе компанией «Дом.РФ»»
Вчера — 6 мая, среда / Москва
Строительство коммерческих объектов в Москве упало на 91% за год
Вчера — 6 мая, среда / Москва
Как в Москве за первый квартал 2026 года построили 5,433 тыс. кв. м офисов, готовых к адаптации.
Вчера — 6 мая, среда / Санкт-Петербург
Продуктовые сети в России увеличили свои площади в торгово-развлекательном центре Петербурга на треть за последние 6 лет.
Вчера — 6 мая, среда / Москва
С начала года в Москве получили разрешение на строительство более 130 недвижимостей.
5 мая, вторник / Москва
"Сбербанк и Альфа-банк подали в суд на производителя обоев «Артекс» с требованием объявить его банкротом"
5 мая, вторник / Красноярский
"Магазин «ВкусВилл» открыл отдел shop-in-shop в Красноярске через партнерство"
5 мая, вторник / Адыгея
Строительство жилого комплекса на территории туристического парка "Дегуакская поляна" в Адыгее начнется архитектурным проектом от "Семьи" объемом 360 тыс. квадратных метров.
5 мая, вторник / Москва
"Прогнозируется достижение рекордной площади 500 тыс. кв. м под light industrial в Московском регионе к 2026 году"
5 мая, вторник / Астраханская
Фитнес-клуб DDX Fitness открылся в Торгово-Развлекательном Центре «Ярмарка» в городе Астрахань.
5 мая, вторник / Москва
"Объем спроса на офисные помещения в Москве сократился вдвое за последний год"
5 мая, вторник / Москва
"Рост стоимости отделки офисов в Москве превышает уровень инфляции"
5 мая, вторник / Москва
В России впервые за 20 лет не было открыто ни одной новой гостиницы в первом квартале