Описание
Предложение на продажу № 63819.
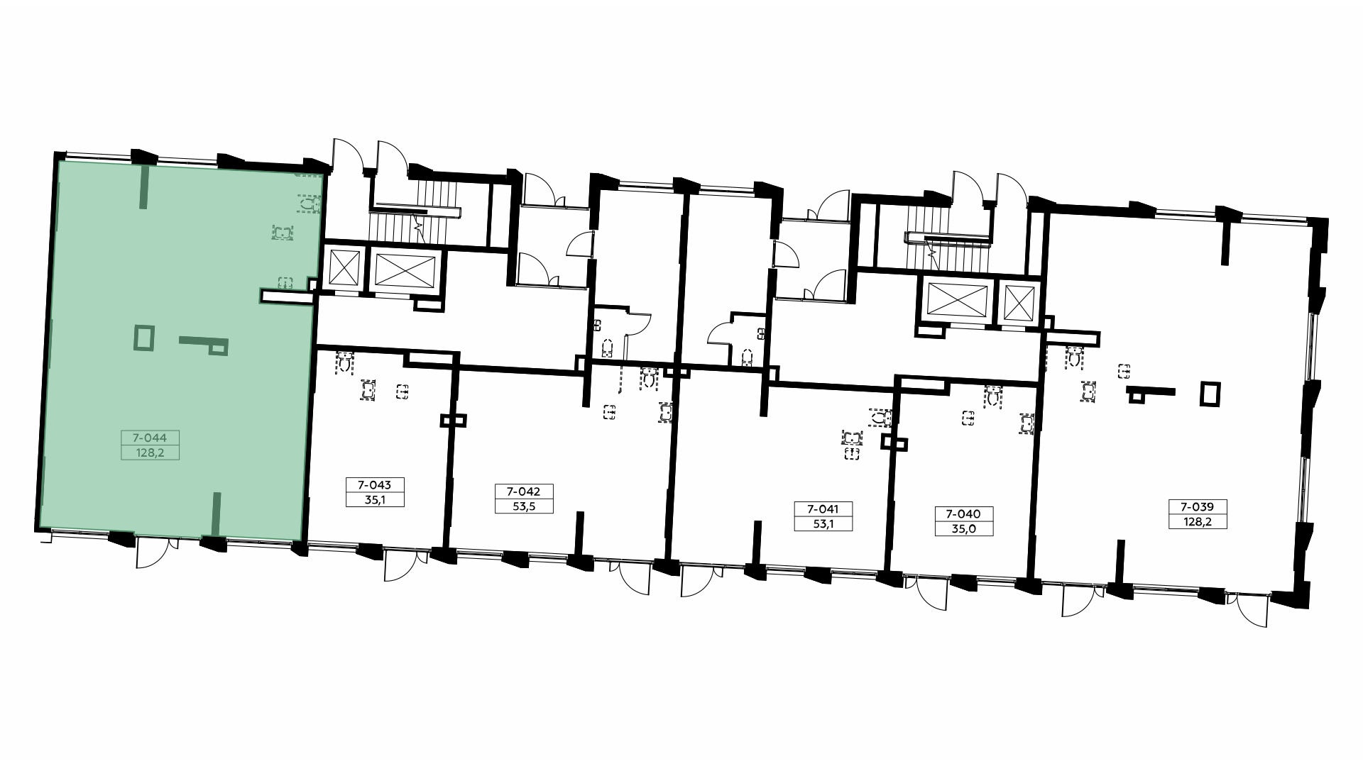
Предлагается в продажу помещение свободного назначения у метро Аэропорт, на Ленинградском проспекте. Помещение площадью 171.1 м2, по адресу Ленинградский проспект, 47к2 расположено в Бизнес Центре. Свободный доступ с улицы. Разгрузка-погрузка для арендаторов со стороны внутреннего двора и заезд автотранспорта.
. Рекламная вывеска для арендатора на фасаде здания Бизнес центра.
. Возможен график работы 24/4. Зальная планировка. Есть выводы на 2 мокрые точки.
. Высота потолка 3,2 м, теплое, сухое, просторное помещение, в правой части помещения (под склад, техпомещения, офис потолки 2м).
. 1 минута пешком до станции метро Аэропорт; 1-я линия Ленинградского проспекта;
. Здание после капитальной реновации;
. Отличный трафик посетителей обеспечивает находящееся рядом крупные бизнес центры;
. Бесплатная парковка рядом со входом; Помещение без отделки;
. Есть все необходимые коммуникации, под ведение любой деятельности;
. Выделенная мощность 35 кВт. Идеально подходит под арендный бизнес
. Большой жилой массив. Множество Бизнес Центров, Финансовая Академия, большой пеший трафик. Остановки наземного городского автотранспорта напротив помещения.
.
. Само помещение идеально под полноценный ретейл. Цоколь с отдельным вход, вывеской, рядом остановка общественного транспорта, до метро 1 минута.
Торговая недвижимость, Street Retail. 1 линия домов. Витрины. Место для рекламы. Зона разгрузки. Проходное и проездное место.
Без комиссии.
Предлагается в продажу помещение свободного назначения у метро Аэропорт, на Ленинградском проспекте. Помещение площадью 171.1 м2, по адресу Ленинградский проспект, 47к2 расположено в Бизнес Центре. Свободный доступ с улицы. Разгрузка-погрузка для арендаторов со стороны внутреннего двора и заезд автотранспорта.
. Рекламная вывеска для арендатора на фасаде здания Бизнес центра.
. Возможен график работы 24/4. Зальная планировка. Есть выводы на 2 мокрые точки.
. Высота потолка 3,2 м, теплое, сухое, просторное помещение, в правой части помещения (под склад, техпомещения, офис потолки 2м).
. 1 минута пешком до станции метро Аэропорт; 1-я линия Ленинградского проспекта;
. Здание после капитальной реновации;
. Отличный трафик посетителей обеспечивает находящееся рядом крупные бизнес центры;
. Бесплатная парковка рядом со входом; Помещение без отделки;
. Есть все необходимые коммуникации, под ведение любой деятельности;
. Выделенная мощность 35 кВт. Идеально подходит под арендный бизнес
. Большой жилой массив. Множество Бизнес Центров, Финансовая Академия, большой пеший трафик. Остановки наземного городского автотранспорта напротив помещения.
.
. Само помещение идеально под полноценный ретейл. Цоколь с отдельным вход, вывеской, рядом остановка общественного транспорта, до метро 1 минута.
Торговая недвижимость, Street Retail. 1 линия домов. Витрины. Место для рекламы. Зона разгрузки. Проходное и проездное место.
Без комиссии.
Расположение
г Москва, пр-кт Ленинградский, д 47
Аэропорт
—
5 мин
Технические характеристики
Новость дня
Все новости
Вчера — 15 апреля, среда / Москва
"Сеть садовых центров «Лемана ПРО» расширяется с открытием нового филиала в Жуковском"
Вчера — 15 апреля, среда / Москва
"Ozon запустил новый логистический центр в Ватутинках"
Вчера — 15 апреля, среда / Москва
"Открытие супермаркета Eurospar в торговом центре «АФИ Галерея» на станции метро Белорусская"
Вчера — 15 апреля, среда / Москва
"Падение спроса на коммерческую недвижимость в новостройках Москвы почти на треть"
Вчера — 15 апреля, среда / Москва
Новый филиал Сбербанка открылся в Торгово-развлекательном центре «Щёлковский»
Вчера — 15 апреля, среда / Москва
"Откроется сервисный офис площадью 4,5 тыс. кв. м в бизнес-центре Dubinin’Sky"
Вчера — 15 апреля, среда / Санкт-Петербург
Сделки на складском рынке Петербурга упали на 80% в первом квартале
Вчера — 15 апреля, среда / Москва
"Компания 'Росспиртпром' приобрела долю в 23,99% Иткульского спиртзавода в Алтайском крае"
Вчера — 15 апреля, среда / Самарская
Сеть «Монетка» расширила свою присутствие, открыв магазины в Самаре и селах Самарской области
Вчера — 15 апреля, среда / Москва
Падение чистой прибыли сети Rendez-Vous на 93% в 2025 году.
14 апреля, вторник / Санкт-Петербург
Планируется развитие культурной инфраструктуры на Ново-Адмиралтейском острове: открытие концертного зала и музея
14 апреля, вторник / Санкт-Петербург
Объем доступных складских площадей в Санкт-Петербурге достиг 5,8 миллиона квадратных метров
14 апреля, вторник / Москва
"«Авивир» переезжает в деловой квартал 'Сколково Парк' в качестве резидента"
14 апреля, вторник / Москва
"Производство российских микрофокусных рентгеновских устройств стартовало в ОЭЗ «Технополис Москва»"
14 апреля, вторник / Москва
"Рост рынка торговой недвижимости притормозил"
14 апреля, вторник / Москва
«Строительная компания "Галс-Девелопмент" планирует возведение первого бизнес-центра в районе "Южный порт"»
14 апреля, вторник / Москва
"«Роснефть» расширяет свои активы, приобретая компанию «Саянскхимпласт», специализирующуюся на производстве ПВХ"
14 апреля, вторник / Москва
"Первый магазин смысловой 226 открывается в пространстве Яндекс-01"
14 апреля, вторник / Москва
"Askona преобразует сеть магазинов в помещения размером от 600 до 1,500 квадратных метров"