Снять офис 748 м² в бизнес-парке Химки
Описание
Предложение в аренду № 46871.
Парковка: наземная – 6 000 руб. за м/место в мес. (без учета НДС);
. подземная – 8 200 руб. за м/место в мес. (без учета НДС).
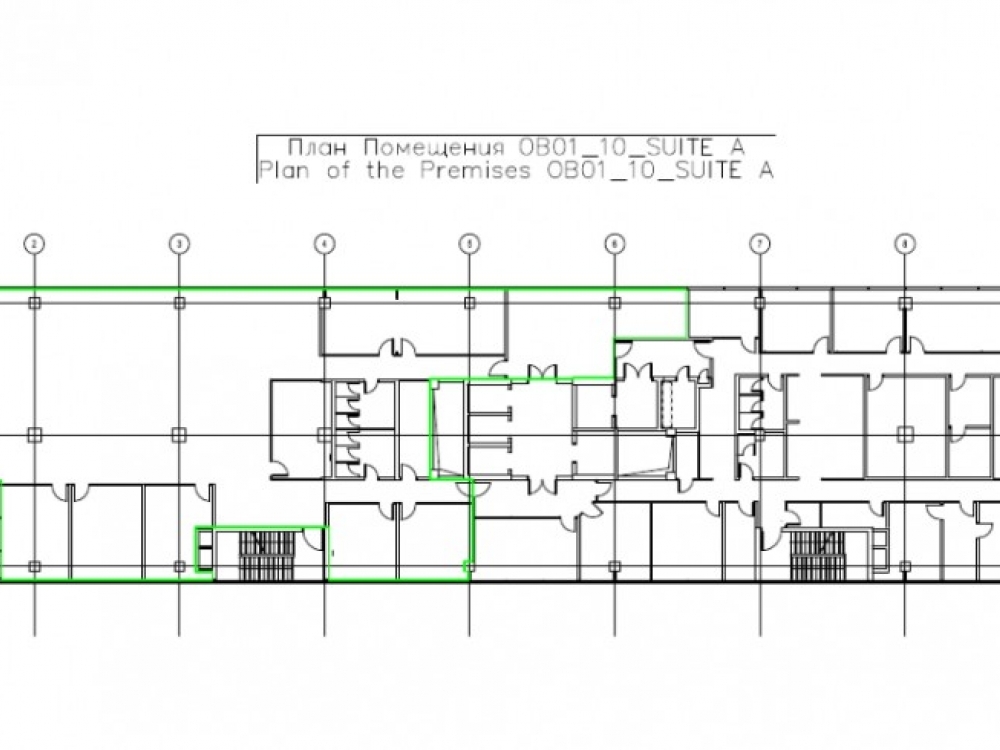
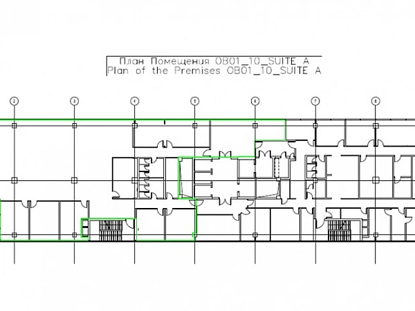
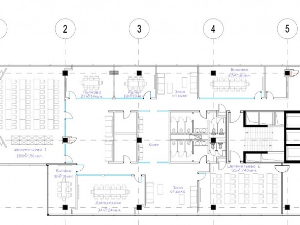
Предлагаем в аренду комфортабельный офис в деловом центре "Химки Бизнес Парк", "А" класс. Четыре километра до МКАД. От станции метро "Речной вокзал" организовано регулярное движение комфортабельных автобусов. В десяти минутах езды аэропорт "Шереметьево". Общая площадь помещения 734 м2, высота потолков от 3 до 4 метров, электрической мощности даостаточно. Здания 2, крыло А.
Без комиссии.
Парковка: наземная – 6 000 руб. за м/место в мес. (без учета НДС);
. подземная – 8 200 руб. за м/место в мес. (без учета НДС).
Предлагаем в аренду комфортабельный офис в деловом центре "Химки Бизнес Парк", "А" класс. Четыре километра до МКАД. От станции метро "Речной вокзал" организовано регулярное движение комфортабельных автобусов. В десяти минутах езды аэропорт "Шереметьево". Общая площадь помещения 734 м2, высота потолков от 3 до 4 метров, электрической мощности даостаточно. Здания 2, крыло А.
Без комиссии.
Расположение
Московская обл, г Химки, ул Ленинградская, влд 39 стр 5
Планерная
—
12 мин
Химки
—
32 мин
Молжаниново
—
34 мин
Левобережная
—
48 мин
Технические характеристики
Свободные помещения в Бизнес-парк Химки
Новость дня
Все новости
Вчера — 28 апреля, вторник / Москва
"Появление двух новых брендов на российском рынке в начале 2026 года"
Вчера — 28 апреля, вторник / Москва
27-этажный бизнес-центр класса А в Коммунарке завершает процесс утверждения своего архитектурного дизайна
Вчера — 28 апреля, вторник / Москва
Перефразированное название статьи: "Открытие первого флагманского магазина Lumique в «Авиапарке»"
Вчера — 28 апреля, вторник / Москва
"Подольская фабрика офсетной печати выставляет на приватизацию 49% своих акций"
Вчера — 28 апреля, вторник / Москва
Самострои в ЮВАО: площадь почти 4 тыс. кв. м за первый квартал
Вчера — 28 апреля, вторник / Москва
Иск на 11,7 млрд рублей подан банком «Санкт-Петербург» к структуре «Гранели»
Вчера — 28 апреля, вторник / Москва
"«Яндекс Фабрика» запускает цепь офлайн-магазинов в Москве"
Вчера — 28 апреля, вторник / Москва
Детская сеть магазинов "Кораблик" столкнулась с финансовыми трудностями
Вчера — 28 апреля, вторник / Москва
Снижение загрузки премиум отелей Москвы в первом квартале до 69,4%
Вчера — 28 апреля, вторник / Крым
"Продается комплекс солнечных электростанций на полуострове Крым"
27 апреля, понедельник / Москва
Гастропространство «НеДетский» на 630 посадочных мест открылось в Центральном детском магазине на Лубянке.
27 апреля, понедельник / Москва
"FORMA завершает продажу всех офисных помещений в бизнес-центре «ЛЕЙКС»"
27 апреля, понедельник / Москва
"Прогноз: восстановление офисного рынка Москвы ожидается к 2028 году"
27 апреля, понедельник / Москва
Проект строительства промышленного парка с двумя зданиями на востоке Москвы.
27 апреля, понедельник / Москва
Бизнес-центр площадью 22,7 тыс. кв. м открылся в Нагатинской пойме.
27 апреля, понедельник / Самарская
Недостроенный птицеводческий комплекс "Евробиотех" в Самарской области ищет покупателя
27 апреля, понедельник / Москва
"Планируется строительство восьмиэтажной автостоянки с коммерческими помещениями на 465 машиномест в Новой Москве"
27 апреля, понедельник / Москва
"«Монарх» приобрел участок площадью 1,36 га на территории бывшего Карачаровского механического завода"
27 апреля, понедельник / Москва
"Производство растительного молока от Сварщицы Екатерины"
27 апреля, понедельник / Москва
"Будущее магазинов Gate 31 под угрозой из-за финансовых трудностей"