Купить офис 1539 м² в БЦ Техпром
Описание
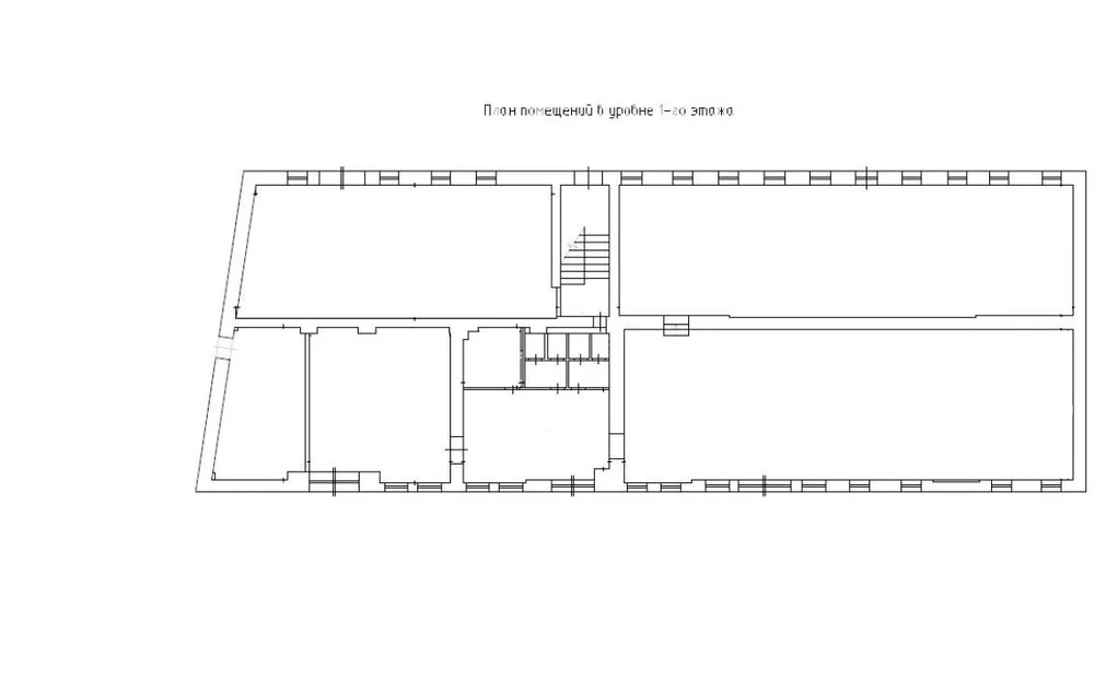
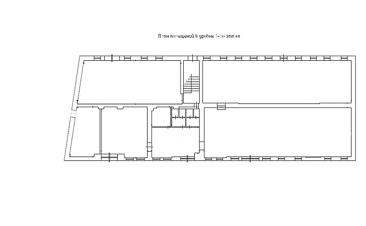
Предлагается к продаже нежилое отдельностоящее здание площадью 1 539, 8 м2.
Здание расположено в ВАО, по адресу - ул. Вольная, д. 35, на территории производственно-складского комплекса.
Здание кирпичное, 3-этажное, без подвала.
Высота потолков от 3 до 8 метров. Выделенная на строение мощность составляет 149 кВт.
В 2022 г. был произведен капитальный ремонт здания. В ходе ремонта были заменены коммуникации, установлены новые стеклопакеты. Ремонт помещений и мест общего пользования выполнен в стиле лофт. Планировка помещений свободная. Блоки первого этажа имеют отдельные входы с улицы.
На данный момент по краткосрочным договорам в аренду сдано 100% площадей здания.
МАП 2 148 000 руб.
цена 205 000 000 руб. AFY-601843870
Здание расположено в ВАО, по адресу - ул. Вольная, д. 35, на территории производственно-складского комплекса.
Здание кирпичное, 3-этажное, без подвала.
Высота потолков от 3 до 8 метров. Выделенная на строение мощность составляет 149 кВт.
В 2022 г. был произведен капитальный ремонт здания. В ходе ремонта были заменены коммуникации, установлены новые стеклопакеты. Ремонт помещений и мест общего пользования выполнен в стиле лофт. Планировка помещений свободная. Блоки первого этажа имеют отдельные входы с улицы.
На данный момент по краткосрочным договорам в аренду сдано 100% площадей здания.
МАП 2 148 000 руб.
цена 205 000 000 руб. AFY-601843870
Расположение
г Москва, ул Вольная, д 35
Семёновская
Соколиная Гора
—
12 мин
Измайлово
—
14 мин
Технические характеристики
Параметры
Телекоммуникации
интернет
Свободные помещения в БЦ Техпром
Новость дня
Расширение возможностей для B2B-клиентов: Avito вводит новые услуги для строительства складов
На платформе Авито теперь доступна категория "Коммерческое строительство" в сегменте услуг, предлагающая широкий выбор специализированных работ и возведение объектов "под ключ" для бизнеса, что упрощает поиск подрядчиков и субподрядчиков для коммерческих проектов.
Все новости
Вчера — 30 апреля, четверг / Москва
"Бумеранг Капитал" увеличил свою долю в сети кафе-пекарен "Цех 85" до 50%
Вчера — 30 апреля, четверг / Ставропольский
В Кисловодске начался проект строительства инвестиционного отеля "Реликт"
Вчера — 30 апреля, четверг / Москва
Ресторан «Долина 5165» и магазин Sokolov теперь доступны посетителям ТРЦ Avenue Sever
Вчера — 30 апреля, четверг / Москва
"Новый флагманский магазин под названием «Флаувау» открыл свои двери на Мясницкой улице"
Вчера — 30 апреля, четверг / Москва
"Уровень вакансии на складах в Московском регионе достиг 5,4% из-за увеличения предложений по субаренде"
Вчера — 30 апреля, четверг / Москва
"Прогнозируется незначительный прирост числа туристов в первом квартале 2026 года - всего 2,8%"
Вчера — 30 апреля, четверг / Москва
Компания "Ориентир" планирует вложить до 150 млрд рублей в расширение бизнеса и развитие новых секторов.
Вчера — 30 апреля, четверг / Москва
"Завершено строительство наземной парковки на 400 автомобильных мест в парке «Ривер Парк Коломенское»"
Вчера — 30 апреля, четверг / Москва
Скорось открытия новых магазинов «Лэтуаль» снизится - 150 точек закроются к 2026 году.
Вчера — 30 апреля, четверг / Москва
Смайл-бар сети "Белая точка" теперь доступен посетителям ТЦ "Левел Причальный"
29 апреля, среда / Москва
Московский цех открыл производство 3D-принтеров для металлической печати.
29 апреля, среда / Москва
БМ-банк завершил продажу большей части площадей в ТЦ «Весна» на Новом Арбате.
29 апреля, среда / Москва
Перефразированное название: "Сеть магазинов 'Жизньмарт' возобновляет свою деятельность в Челябинске"
29 апреля, среда / Санкт-Петербург
Сервисный офис «Практик» начал свою работу на Октябрьской набережной в Санкт-Петербурге.
29 апреля, среда / Санкт-Петербург
Строительство складских помещений в Санкт-Петербурге и Ленинградской области увеличилось в 2,5 раза.
29 апреля, среда / Москва
Москва увеличила объем строительства в рамках программы МПТ до 9,5 миллионов квадратных метров
29 апреля, среда / Санкт-Петербург
Соседский центр "ЖИВИ Клуб" открыл свои двери в Новоселье
29 апреля, среда / Москва
"Завершено строительство пятиэтажной наземной парковки в районе Нагатинский Затон"
29 апреля, среда / Санкт-Петербург
Рекордный уровень строительства складов зафиксирован в Санкт-Петербурге и Ленинградской области
29 апреля, среда / Москва
Аренда складов в Москве снизилась на 25%