Купить ПСН 2129 м² в ЖК Сиреневый парк
Описание
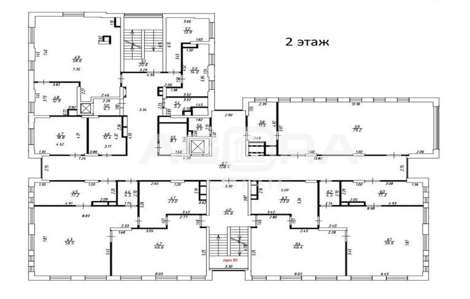
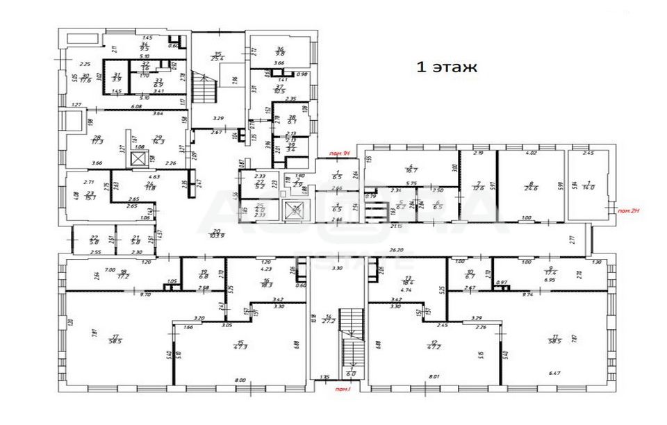
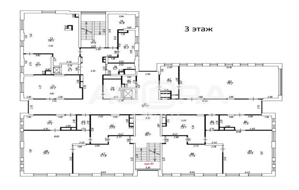
Номер объекта: 550878. Продажа ОСЗ в новом жилом комплексе, в районе Богородское, ВАО, в 12 минутах пешком от м. Бульвар Рокоссовского. Здание 3-х этажное, общей площадью 2 129,10 м2 (687,00 м2 – 1 этаж, 721,40 м2 – 2 этаж, 720,70 м2 – 3 этаж).
Назначение здания – нежилое помещение, возможное использование - детская образовательная организация (ДОО).
Есть 4 отдельных входа в здание. Качественное освещение, много окон по периметру на каждом этаже, высота потолков 3,3 – 4,2 м. Технические характеристики: системы ГВС и ХВС, отопление, вентиляция, пожарные системы. Состояние помещения – с частичной отделкой. Электрическая мощность 100 кВт.
ЖК Сиреневый парк – это современный комплекс комфорт-класса, состоящий из 15 монолитных корпусов разной этажности, расположенный рядом с м. Бульвар Рокоссовского и одновременно в 2-х минутах пешком от парка Лосиный остров. Это масштабный проект, сдача корпусов 2021-2026 г.г. Преимущества: транспортная доступность, развитая инфраструктура, экологически чистый район, рядом парк. Есть подземный паркинг для жителей ЖК на 190 м/м и наземный стихийный паркинг.Объект № 550878
Назначение здания – нежилое помещение, возможное использование - детская образовательная организация (ДОО).
Есть 4 отдельных входа в здание. Качественное освещение, много окон по периметру на каждом этаже, высота потолков 3,3 – 4,2 м. Технические характеристики: системы ГВС и ХВС, отопление, вентиляция, пожарные системы. Состояние помещения – с частичной отделкой. Электрическая мощность 100 кВт.
ЖК Сиреневый парк – это современный комплекс комфорт-класса, состоящий из 15 монолитных корпусов разной этажности, расположенный рядом с м. Бульвар Рокоссовского и одновременно в 2-х минутах пешком от парка Лосиный остров. Это масштабный проект, сдача корпусов 2021-2026 г.г. Преимущества: транспортная доступность, развитая инфраструктура, экологически чистый район, рядом парк. Есть подземный паркинг для жителей ЖК на 190 м/м и наземный стихийный паркинг.Объект № 550878
Расположение
г Москва, ул Тагильская, д 4В
б-р Рокоссовского
—
12 мин
Локомотив
—
19 мин
Бульвар Рокоссовского
—
12 мин
Технические характеристики
Параметры
Охрана
есть
Инженерия
кондиционер
Статус владельца объявления
агентство
Параметры помещения
Высота потолков
—
Свободные помещения в ЖК Сиреневый парк
Новость дня
Расширение возможностей для B2B-клиентов: Avito вводит новые услуги для строительства складов
На платформе Авито теперь доступна категория "Коммерческое строительство" в сегменте услуг, предлагающая широкий выбор специализированных работ и возведение объектов "под ключ" для бизнеса, что упрощает поиск подрядчиков и субподрядчиков для коммерческих проектов.
Все новости
Сегодня — 4 мая, понедельник / Москва
Вложения в недвижимость России за первую половину текущего года составили 169,5 миллиарда рублей.
Сегодня — 4 мая, понедельник / Москва
Российский складской рынок продолжает расти: площадь складских помещений превысит 60 млн кв. м к концу 2026 года
Сегодня — 4 мая, понедельник / Москва
"Компания "Галс-Девелопмент" получила одобрение на строительство делового центра "Дубининский"."
Сегодня — 4 мая, понедельник / Москва
Инвестиционный фонд "Бумеранг Капитал" стал владельцем половины сети кофеен "Цех 85"
Сегодня — 4 мая, понедельник / Краснодарский
В Анапе откроется первый отель с инновационными IT-сервисами
Сегодня — 4 мая, понедельник / Москва
Планируется строительство торгового центра площадью свыше 6 тыс. кв. м в Краснопахорском районе Москвы.
Сегодня — 4 мая, понедельник / Москва
Смена собственника у клубов «Дикая орхидея» и «Дефиле»
Сегодня — 4 мая, понедельник / Вологодская
"Прекращена деятельность "наливаек" и магазинов электронных сигарет в Вологодской области"
Сегодня — 4 мая, понедельник / Москва
"Exeed перемещает производство из Подмосковья на площадку АГР в Шушарах"
Сегодня — 4 мая, понедельник / Москва
На юге Москвы запланировано строительство ТПУ "Кленовый бульвар" на площади 2 гектара.
30 апреля, четверг / Москва
"Бумеранг Капитал" увеличил свою долю в сети кафе-пекарен "Цех 85" до 50%
30 апреля, четверг / Ставропольский
В Кисловодске начался проект строительства инвестиционного отеля "Реликт"
30 апреля, четверг / Москва
Ресторан «Долина 5165» и магазин Sokolov теперь доступны посетителям ТРЦ Avenue Sever
30 апреля, четверг / Москва
"Новый флагманский магазин под названием «Флаувау» открыл свои двери на Мясницкой улице"
30 апреля, четверг / Москва
"Уровень вакансии на складах в Московском регионе достиг 5,4% из-за увеличения предложений по субаренде"
30 апреля, четверг / Москва
"Прогнозируется незначительный прирост числа туристов в первом квартале 2026 года - всего 2,8%"
30 апреля, четверг / Москва
Компания "Ориентир" планирует вложить до 150 млрд рублей в расширение бизнеса и развитие новых секторов.
30 апреля, четверг / Москва
"Завершено строительство наземной парковки на 400 автомобильных мест в парке «Ривер Парк Коломенское»"
30 апреля, четверг / Москва
Скорось открытия новых магазинов «Лэтуаль» снизится - 150 точек закроются к 2026 году.
30 апреля, четверг / Москва
Смайл-бар сети "Белая точка" теперь доступен посетителям ТЦ "Левел Причальный"