Описание
Предложение в аренду № 34568.
Сдается отдельно стоящее 4-х этажное здание с земельным участком на набережной реки Яузы, расположенное в пешей доступности (650м) от метро Преображенская площадь.
.
. Уникальный дизайнерский проект. Оригинальный фасад из окрашенного кликфальца, новейший ремонт с использованием современных материалов и сохранением исторического наследия здания, современные коммуникации. Совмещённая планировка, сочетающая кабинетную нарезку и опен-спейс. Возможен ремонт под арендатора. Центральное отопление, водо/электроснабжение, современные инженерные коммуникации.
. Площадь:
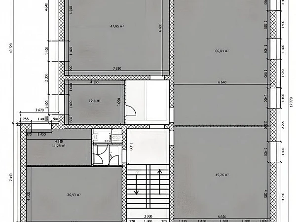
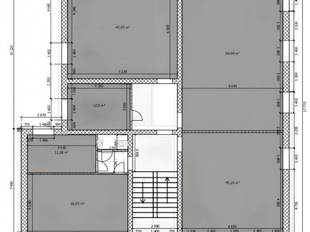
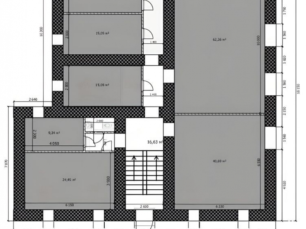
. — 219 кв.м. цокольный этаж;
. — 246 кв.м. первый этаж;
. — 246 кв.м. второй этаж;
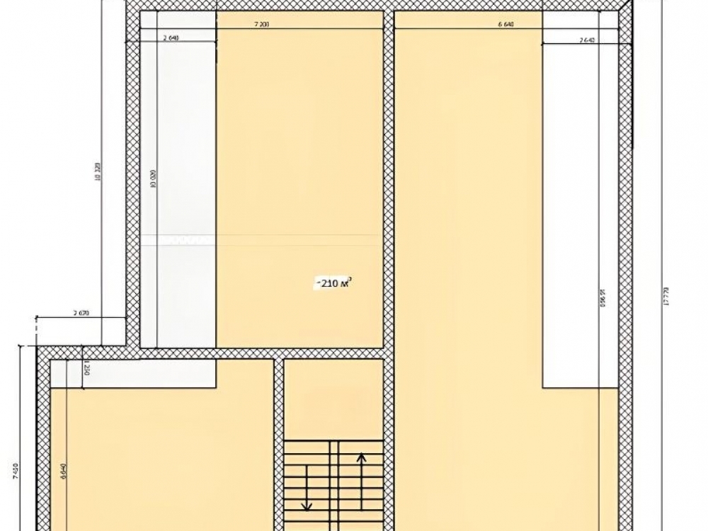
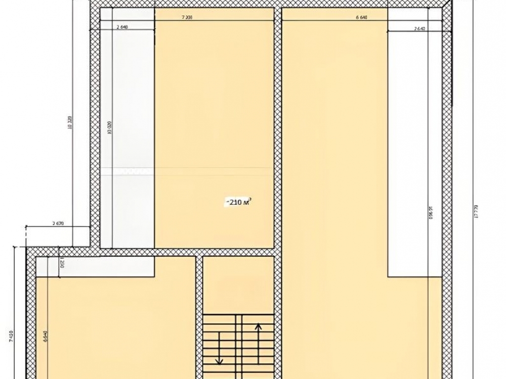
. — 210 кв.м. мансардный этаж.
Этажи с 1 по 2.
Без комиссии.
Сдается отдельно стоящее 4-х этажное здание с земельным участком на набережной реки Яузы, расположенное в пешей доступности (650м) от метро Преображенская площадь.
.
. Уникальный дизайнерский проект. Оригинальный фасад из окрашенного кликфальца, новейший ремонт с использованием современных материалов и сохранением исторического наследия здания, современные коммуникации. Совмещённая планировка, сочетающая кабинетную нарезку и опен-спейс. Возможен ремонт под арендатора. Центральное отопление, водо/электроснабжение, современные инженерные коммуникации.
. Площадь:
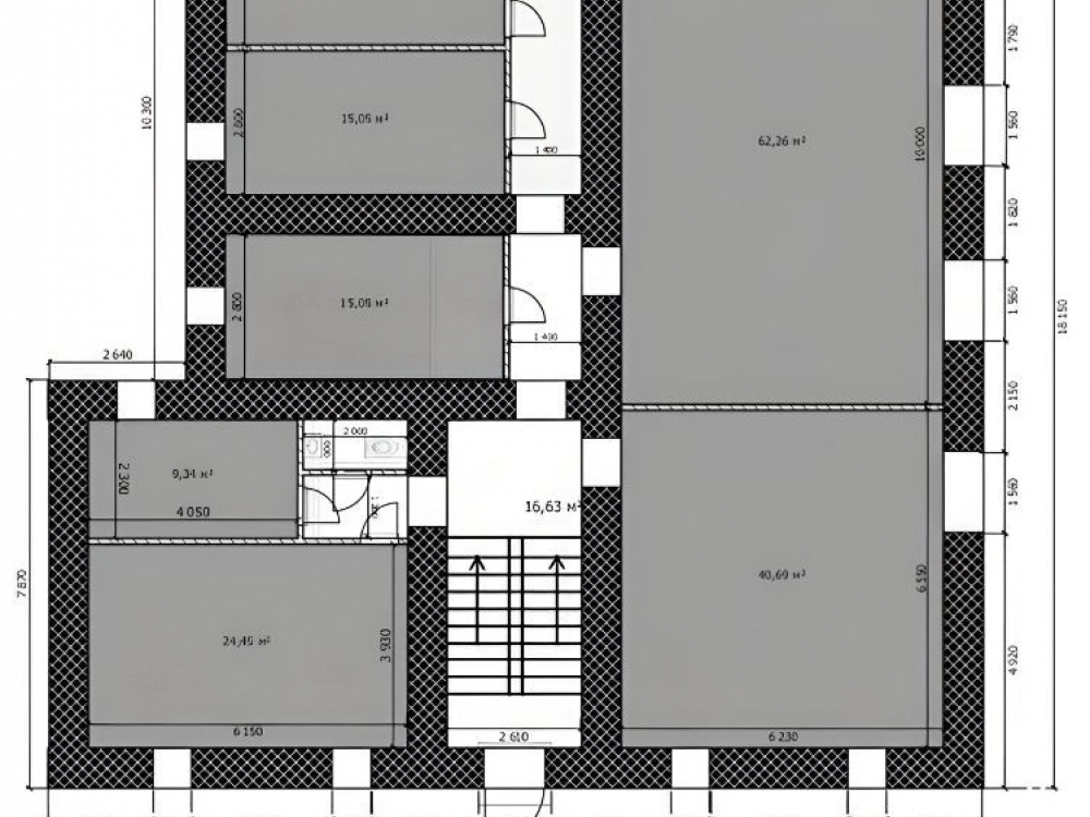
. — 219 кв.м. цокольный этаж;
. — 246 кв.м. первый этаж;
. — 246 кв.м. второй этаж;
. — 210 кв.м. мансардный этаж.
Этажи с 1 по 2.
Без комиссии.
Расположение
г Москва, ул Потешная, д 4
Преображ. площадь
—
10 мин
Электрозаводская
—
20 мин
Сокольники
—
22 мин
Технические характеристики
Новость дня
Все новости
Вчера — 28 апреля, вторник / Москва
"Появление двух новых брендов на российском рынке в начале 2026 года"
Вчера — 28 апреля, вторник / Москва
27-этажный бизнес-центр класса А в Коммунарке завершает процесс утверждения своего архитектурного дизайна
Вчера — 28 апреля, вторник / Москва
Перефразированное название статьи: "Открытие первого флагманского магазина Lumique в «Авиапарке»"
Вчера — 28 апреля, вторник / Москва
"Подольская фабрика офсетной печати выставляет на приватизацию 49% своих акций"
Вчера — 28 апреля, вторник / Москва
Самострои в ЮВАО: площадь почти 4 тыс. кв. м за первый квартал
Вчера — 28 апреля, вторник / Москва
Иск на 11,7 млрд рублей подан банком «Санкт-Петербург» к структуре «Гранели»
Вчера — 28 апреля, вторник / Москва
"«Яндекс Фабрика» запускает цепь офлайн-магазинов в Москве"
Вчера — 28 апреля, вторник / Москва
Детская сеть магазинов "Кораблик" столкнулась с финансовыми трудностями
Вчера — 28 апреля, вторник / Москва
Снижение загрузки премиум отелей Москвы в первом квартале до 69,4%
Вчера — 28 апреля, вторник / Крым
"Продается комплекс солнечных электростанций на полуострове Крым"
27 апреля, понедельник / Москва
Гастропространство «НеДетский» на 630 посадочных мест открылось в Центральном детском магазине на Лубянке.
27 апреля, понедельник / Москва
"FORMA завершает продажу всех офисных помещений в бизнес-центре «ЛЕЙКС»"
27 апреля, понедельник / Москва
"Прогноз: восстановление офисного рынка Москвы ожидается к 2028 году"
27 апреля, понедельник / Москва
Проект строительства промышленного парка с двумя зданиями на востоке Москвы.
27 апреля, понедельник / Москва
Бизнес-центр площадью 22,7 тыс. кв. м открылся в Нагатинской пойме.
27 апреля, понедельник / Самарская
Недостроенный птицеводческий комплекс "Евробиотех" в Самарской области ищет покупателя
27 апреля, понедельник / Москва
"Планируется строительство восьмиэтажной автостоянки с коммерческими помещениями на 465 машиномест в Новой Москве"
27 апреля, понедельник / Москва
"«Монарх» приобрел участок площадью 1,36 га на территории бывшего Карачаровского механического завода"
27 апреля, понедельник / Москва
"Производство растительного молока от Сварщицы Екатерины"
27 апреля, понедельник / Москва
"Будущее магазинов Gate 31 под угрозой из-за финансовых трудностей"