Купить дом 282 м² в д Лопотово
ID 741373
Цена
45 000 000 ₽
Ставка
159 574 ₽ / м²
Площадь
282 м²
застройщик
Московская обл, г Солнечногорск, деревня Лопотово
На карте
Описание
Арт. 76165445 Вашему вниманию представлен дом 282 кв м, расположенный в клубном коттеджном поселке Истра Лэнд-2 в 45 км от МКАД по Новорижскому шоссе.
Проект дома выполнен в современном стиле удовлетворит вкусы самых взыскательных покупателей, так как является плодом многолетней деятельности строительной компании-подрядчика. Дом возведен на монолитной фундаментной плите, стены выполнены из крупноформатного керамического блока Paraterm, окна - двухкамерный стеклопакет, металлическая входная дверь. В проекте дома заложена эксплуатируемая крыша, которая позволит наслаждаться прекрасными видами. Имеется подробная проектная документация с дизайнерскими решениями.
Помимо конструктива дома, продумано до мелочей и планировочное решение: просторные три спальни, большая гостиная, терраса, кабинет, три гардеробные, три санузла и сауна, также по проекту на участке можно разместить бассейн.
Участок 12 соток правильной и ровной формы. Дома в поселке расположены самым лучшим образом: так, что без возведения больших заборов можно чувствовать атмосферу уединения с природой.
К дому подведены все необходимые центральные коммуникации: газ, электричество, вода, канализация. Есть место для площадки для парковки перед домом и возможно строительство навеса или теплого гаража.
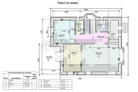
Планировка
Первый этаж: холл, кабинет, санузел, гардеробная, кухня-гостиная, котельная, терраса;
Второй этаж: холл, мастер-спальня, две спальни, санузел, балкон.
Коттеджный̆ Посёлок премиум класса «Истра-Лэнд 2» расположен в 45 км от МКАД по Новорижскому, Пятницкому или Ленинградскому шоссе, на полуострове Истринского водохранилища, окруженном лесом. Этот посёлок является частью КП «Истра-Лэнд», вблизи поселка Лопотово, с развитой̆ инфраструктурой̆.
Поселок расположен на закрытой территории со своим КПП, круглосуточной охраной и видеонаблюдением. Внутри поселка созданы все условия для комфортного проживания: асфальтные подъездные дороги, широкие улицы с тротуарами и освещением, зелёные общественные зоны. Все коммуникации центральные: водоснабжение, электричество, канализация, газ.
Богатство различной инфраструктуры впечатляет: в 10-ти минутах езды - круглосуточный продуктовый магазин; в пешей доступности расположены 3 пляжных зоны: 1 -открытая и 2 – закрытые; несколько яхт-клубов с эллингами; в пешей доступности расположен парк для пеших и вело-прогулок; в 5 минутах езды - общественные спортивные площадки, включая хоккейную коробку; в 20 минутах - физкультурно- оздоровительный̆ комплекс с круглогодичными занятиями для детей̆ и взрослых: теннисный̆ корт, волейбольная площадка и клуб водных видов спорта с арендой̆ оборудования и инструкторами; неподалёку также находится клуб «Романтик» с еженедельными спортивными мероприятиями.
Удобное расположение поселка позволяет в течение 50-ти минут на автомобиле добраться до Москвы по одному из трех шоссе: Новорижскому, Пятницкому или Ленинградскому.
Проект дома выполнен в современном стиле удовлетворит вкусы самых взыскательных покупателей, так как является плодом многолетней деятельности строительной компании-подрядчика. Дом возведен на монолитной фундаментной плите, стены выполнены из крупноформатного керамического блока Paraterm, окна - двухкамерный стеклопакет, металлическая входная дверь. В проекте дома заложена эксплуатируемая крыша, которая позволит наслаждаться прекрасными видами. Имеется подробная проектная документация с дизайнерскими решениями.
Помимо конструктива дома, продумано до мелочей и планировочное решение: просторные три спальни, большая гостиная, терраса, кабинет, три гардеробные, три санузла и сауна, также по проекту на участке можно разместить бассейн.
Участок 12 соток правильной и ровной формы. Дома в поселке расположены самым лучшим образом: так, что без возведения больших заборов можно чувствовать атмосферу уединения с природой.
К дому подведены все необходимые центральные коммуникации: газ, электричество, вода, канализация. Есть место для площадки для парковки перед домом и возможно строительство навеса или теплого гаража.
Планировка
Первый этаж: холл, кабинет, санузел, гардеробная, кухня-гостиная, котельная, терраса;
Второй этаж: холл, мастер-спальня, две спальни, санузел, балкон.
Коттеджный̆ Посёлок премиум класса «Истра-Лэнд 2» расположен в 45 км от МКАД по Новорижскому, Пятницкому или Ленинградскому шоссе, на полуострове Истринского водохранилища, окруженном лесом. Этот посёлок является частью КП «Истра-Лэнд», вблизи поселка Лопотово, с развитой̆ инфраструктурой̆.
Поселок расположен на закрытой территории со своим КПП, круглосуточной охраной и видеонаблюдением. Внутри поселка созданы все условия для комфортного проживания: асфальтные подъездные дороги, широкие улицы с тротуарами и освещением, зелёные общественные зоны. Все коммуникации центральные: водоснабжение, электричество, канализация, газ.
Богатство различной инфраструктуры впечатляет: в 10-ти минутах езды - круглосуточный продуктовый магазин; в пешей доступности расположены 3 пляжных зоны: 1 -открытая и 2 – закрытые; несколько яхт-клубов с эллингами; в пешей доступности расположен парк для пеших и вело-прогулок; в 5 минутах езды - общественные спортивные площадки, включая хоккейную коробку; в 20 минутах - физкультурно- оздоровительный̆ комплекс с круглогодичными занятиями для детей̆ и взрослых: теннисный̆ корт, волейбольная площадка и клуб водных видов спорта с арендой̆ оборудования и инструкторами; неподалёку также находится клуб «Романтик» с еженедельными спортивными мероприятиями.
Удобное расположение поселка позволяет в течение 50-ти минут на автомобиле добраться до Москвы по одному из трех шоссе: Новорижскому, Пятницкому или Ленинградскому.
Расположение
Московская обл, г Солнечногорск, деревня Лопотово
Технические характеристики
Параметры
Водоснабжение
есть
Тип сделки
прямая продажа
Тип здания
кирпичный
Электричество
есть
Канализация
есть
Газ
есть
Отопление
есть
Статус владельца объявления
агентство
Параметры помещения
Высота потолков
—
Новость дня
Расширение возможностей для B2B-клиентов: Avito вводит новые услуги для строительства складов
На платформе Авито теперь доступна категория "Коммерческое строительство" в сегменте услуг, предлагающая широкий выбор специализированных работ и возведение объектов "под ключ" для бизнеса, что упрощает поиск подрядчиков и субподрядчиков для коммерческих проектов.
Все новости
Сегодня — 6 мая, среда / Москва
Как в Москве за первый квартал 2026 года построили 5,433 тыс. кв. м офисов, готовых к адаптации.
Сегодня — 6 мая, среда / Москва
С начала года в Москве получили разрешение на строительство более 130 недвижимостей.
Вчера — 5 мая, вторник / Москва
"Сбербанк и Альфа-банк подали в суд на производителя обоев «Артекс» с требованием объявить его банкротом"
Вчера — 5 мая, вторник / Красноярский
"Магазин «ВкусВилл» открыл отдел shop-in-shop в Красноярске через партнерство"
Вчера — 5 мая, вторник / Адыгея
Строительство жилого комплекса на территории туристического парка "Дегуакская поляна" в Адыгее начнется архитектурным проектом от "Семьи" объемом 360 тыс. квадратных метров.
Вчера — 5 мая, вторник / Москва
"Прогнозируется достижение рекордной площади 500 тыс. кв. м под light industrial в Московском регионе к 2026 году"
Вчера — 5 мая, вторник / Астраханская
Фитнес-клуб DDX Fitness открылся в Торгово-Развлекательном Центре «Ярмарка» в городе Астрахань.
Вчера — 5 мая, вторник / Москва
"Объем спроса на офисные помещения в Москве сократился вдвое за последний год"
Вчера — 5 мая, вторник / Москва
"Рост стоимости отделки офисов в Москве превышает уровень инфляции"
Вчера — 5 мая, вторник / Москва
В России впервые за 20 лет не было открыто ни одной новой гостиницы в первом квартале
Вчера — 5 мая, вторник / Москва
Спрос на услуги аренды апартаментов в Санкт-Петербурге упал на четверть.
Вчера — 5 мая, вторник / Москва
"Сеть магазинов 'Лента' запустила свой первый розничный магазин специализированных товаров для ремонта, дачи и сада в Шушарах"
4 мая, понедельник / Москва
Вложения в недвижимость России за первую половину текущего года составили 169,5 миллиарда рублей.
4 мая, понедельник / Москва
Российский складской рынок продолжает расти: площадь складских помещений превысит 60 млн кв. м к концу 2026 года
4 мая, понедельник / Москва
"Компания "Галс-Девелопмент" получила одобрение на строительство делового центра "Дубининский"."
4 мая, понедельник / Москва
Инвестиционный фонд "Бумеранг Капитал" стал владельцем половины сети кофеен "Цех 85"
4 мая, понедельник / Краснодарский
В Анапе откроется первый отель с инновационными IT-сервисами
4 мая, понедельник / Москва
Планируется строительство торгового центра площадью свыше 6 тыс. кв. м в Краснопахорском районе Москвы.
4 мая, понедельник / Москва
Смена собственника у клубов «Дикая орхидея» и «Дефиле»
4 мая, понедельник / Вологодская
"Прекращена деятельность "наливаек" и магазинов электронных сигарет в Вологодской области"