Купить ПСН 1269 м²
ID 875741
Цена
150 000 000 ₽
Ставка
118 203 ₽ / м²
Площадь
1269 м²
Этаж
не указан
ИФНС
7723
агентство недвижимости
г Москва, ул Перерва, д 8 стр 1
На карте
Перерва
—
10 мин
Курьяново
—
13 мин
Марьино
—
22 мин
Описание
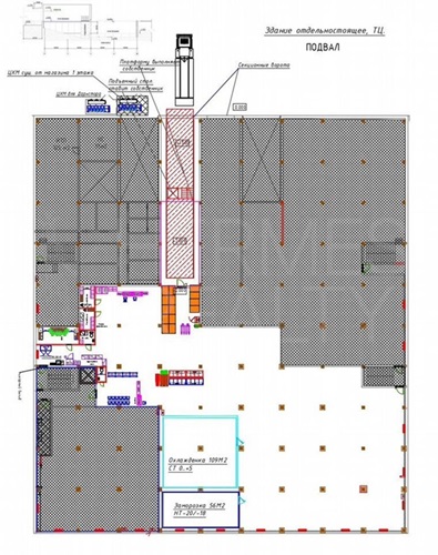
Продажа здания 1269 м2 м. Марьино в ЮАО Описание: В густонаселенном спальном районе Москвы с активной инфраструктурой. В пешей доступности от ТЦ проживает около 50 000 москвичей. Интенсивный автомобильный и пешеходный трафик. На первой линии домов с хорошей видимостью с дороги.Расположение: Хорошая транспортная доступность рядом остановки общественного транспорта, комфортная автомобильная развязка, ближайшая станция - МЦД 'Перерва' - в 15 минутах пешком.Коммуникации: Коммунальные платежи оплачиваются отдельно по счетчикам.Парковка: Городской паркинг.Дополнительно: Помещение находится на -1 этаже. Отдельный вход. Персональная погрузочно-разгрузочная зона, с возможностью комфортной парковки и разгрузки большегрузов. Отдельный лифт с грузоподъёмностью 1,5 тонны. Open space. Шаг колонн 6 метров. Высота потолков 3,30 м. P = 85 кВт. Хорошие рекламные возможности.Арендатор - dаrk stоrе 'Пятерочка', долгосрочный договор аренды до 17.10.2032 г., МАП 1 269 000 руб. в мес., индексация ИПЦ не более 5% по соглашению.Схема сделки договор купли-продажи недвижимости (ДКПН). Звоните, ответим на Ваши вопросы и организуем показ в удобное для вас время! Объект №3100-961549.
Расположение
г Москва, ул Перерва, д 8 стр 1
Перерва
—
10 мин
Курьяново
—
13 мин
Марьино
—
22 мин
Технические характеристики
Параметры
Статус владельца объявления
агентство
Новость дня
Расширение возможностей для B2B-клиентов: Avito вводит новые услуги для строительства складов
На платформе Авито теперь доступна категория "Коммерческое строительство" в сегменте услуг, предлагающая широкий выбор специализированных работ и возведение объектов "под ключ" для бизнеса, что упрощает поиск подрядчиков и субподрядчиков для коммерческих проектов.
Все новости
Сегодня — 30 апреля, четверг / Москва
"Бумеранг Капитал" увеличил свою долю в сети кафе-пекарен "Цех 85" до 50%
Сегодня — 30 апреля, четверг / Ставропольский
В Кисловодске начался проект строительства инвестиционного отеля "Реликт"
Сегодня — 30 апреля, четверг / Москва
Ресторан «Долина 5165» и магазин Sokolov теперь доступны посетителям ТРЦ Avenue Sever
Сегодня — 30 апреля, четверг / Москва
"Новый флагманский магазин под названием «Флаувау» открыл свои двери на Мясницкой улице"
Сегодня — 30 апреля, четверг / Москва
"Уровень вакансии на складах в Московском регионе достиг 5,4% из-за увеличения предложений по субаренде"
Сегодня — 30 апреля, четверг / Москва
"Прогнозируется незначительный прирост числа туристов в первом квартале 2026 года - всего 2,8%"
Сегодня — 30 апреля, четверг / Москва
Компания "Ориентир" планирует вложить до 150 млрд рублей в расширение бизнеса и развитие новых секторов.
Сегодня — 30 апреля, четверг / Москва
"Завершено строительство наземной парковки на 400 автомобильных мест в парке «Ривер Парк Коломенское»"
Сегодня — 30 апреля, четверг / Москва
Скорось открытия новых магазинов «Лэтуаль» снизится - 150 точек закроются к 2026 году.
Сегодня — 30 апреля, четверг / Москва
Смайл-бар сети "Белая точка" теперь доступен посетителям ТЦ "Левел Причальный"
Вчера — 29 апреля, среда / Москва
Московский цех открыл производство 3D-принтеров для металлической печати.
Вчера — 29 апреля, среда / Москва
БМ-банк завершил продажу большей части площадей в ТЦ «Весна» на Новом Арбате.
Вчера — 29 апреля, среда / Москва
Перефразированное название: "Сеть магазинов 'Жизньмарт' возобновляет свою деятельность в Челябинске"
Вчера — 29 апреля, среда / Санкт-Петербург
Сервисный офис «Практик» начал свою работу на Октябрьской набережной в Санкт-Петербурге.
Вчера — 29 апреля, среда / Санкт-Петербург
Строительство складских помещений в Санкт-Петербурге и Ленинградской области увеличилось в 2,5 раза.
Вчера — 29 апреля, среда / Москва
Москва увеличила объем строительства в рамках программы МПТ до 9,5 миллионов квадратных метров
Вчера — 29 апреля, среда / Санкт-Петербург
Соседский центр "ЖИВИ Клуб" открыл свои двери в Новоселье
Вчера — 29 апреля, среда / Москва
"Завершено строительство пятиэтажной наземной парковки в районе Нагатинский Затон"
Вчера — 29 апреля, среда / Санкт-Петербург
Рекордный уровень строительства складов зафиксирован в Санкт-Петербурге и Ленинградской области
Вчера — 29 апреля, среда / Москва
Аренда складов в Москве снизилась на 25%