Описание
Предложение на продажу № 58237.
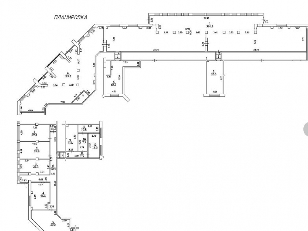
Продажа здания 930 м2 отдельно стоящее нежилое. Первая линия домов, отличная видимость, удобная транспортная доступность. Помещение на 1-м, 2-м и мансардном этажах. Есть 4 входа с улицы. Витринные окна, санузлы, состояние за выездом арендатора, вентиляция, кондиционирование, Возможно увеличение эл-ва с 45 квт до 145 кВт. Есть своя котельная, есть газ, парковка вдоль фасада здания на 8 машино-мест, Рядом крупнейшие ЖК Бизнес класса, большое количество заселенных арендаторами Бизнес центров и офисных зданий. От метро Павелецкая 7-10 минут пешком. Земельный участок в аренде.
. 1 этаж арендатор Озон, МАП - 1 100 000 руб. УСН. ДА 5 лет. Индексация 5%.
. 2 этаж + мансарда - арендатор "Хостел", МАП - 1300000 руб. УСН. ДА 11 месяцев +.
Этажи с 1 по 2.
Торговая недвижимость, Street Retail. 1 линия домов. Ресторанная вытяжка. Витрины. Место для рекламы. Зона разгрузки. Проходное и проездное место.
Арендный бизнес. Окупаемость: 8 лет и 1 меc. Доходность: 12.37%. Доходность: 12.37%. Присутствует арендатор: Озон Фреш, Хостел.
Без комиссии.
Продажа здания 930 м2 отдельно стоящее нежилое. Первая линия домов, отличная видимость, удобная транспортная доступность. Помещение на 1-м, 2-м и мансардном этажах. Есть 4 входа с улицы. Витринные окна, санузлы, состояние за выездом арендатора, вентиляция, кондиционирование, Возможно увеличение эл-ва с 45 квт до 145 кВт. Есть своя котельная, есть газ, парковка вдоль фасада здания на 8 машино-мест, Рядом крупнейшие ЖК Бизнес класса, большое количество заселенных арендаторами Бизнес центров и офисных зданий. От метро Павелецкая 7-10 минут пешком. Земельный участок в аренде.
. 1 этаж арендатор Озон, МАП - 1 100 000 руб. УСН. ДА 5 лет. Индексация 5%.
. 2 этаж + мансарда - арендатор "Хостел", МАП - 1300000 руб. УСН. ДА 11 месяцев +.
Этажи с 1 по 2.
Торговая недвижимость, Street Retail. 1 линия домов. Ресторанная вытяжка. Витрины. Место для рекламы. Зона разгрузки. Проходное и проездное место.
Арендный бизнес. Окупаемость: 8 лет и 1 меc. Доходность: 12.37%. Доходность: 12.37%. Присутствует арендатор: Озон Фреш, Хостел.
Без комиссии.
Расположение
г Москва, ул Летниковская, д 18 стр 1
Павелецкая
—
7 мин
Павелецкая
—
7 мин
Серпуховская
—
14 мин
Технические характеристики
Параметры
Статус владельца объявления
агентство
Новость дня
Расширение возможностей для B2B-клиентов: Avito вводит новые услуги для строительства складов
На платформе Авито теперь доступна категория "Коммерческое строительство" в сегменте услуг, предлагающая широкий выбор специализированных работ и возведение объектов "под ключ" для бизнеса, что упрощает поиск подрядчиков и субподрядчиков для коммерческих проектов.
Все новости
Вчера — 30 апреля, четверг / Москва
"Бумеранг Капитал" увеличил свою долю в сети кафе-пекарен "Цех 85" до 50%
Вчера — 30 апреля, четверг / Ставропольский
В Кисловодске начался проект строительства инвестиционного отеля "Реликт"
Вчера — 30 апреля, четверг / Москва
Ресторан «Долина 5165» и магазин Sokolov теперь доступны посетителям ТРЦ Avenue Sever
Вчера — 30 апреля, четверг / Москва
"Новый флагманский магазин под названием «Флаувау» открыл свои двери на Мясницкой улице"
Вчера — 30 апреля, четверг / Москва
"Уровень вакансии на складах в Московском регионе достиг 5,4% из-за увеличения предложений по субаренде"
Вчера — 30 апреля, четверг / Москва
"Прогнозируется незначительный прирост числа туристов в первом квартале 2026 года - всего 2,8%"
Вчера — 30 апреля, четверг / Москва
Компания "Ориентир" планирует вложить до 150 млрд рублей в расширение бизнеса и развитие новых секторов.
Вчера — 30 апреля, четверг / Москва
"Завершено строительство наземной парковки на 400 автомобильных мест в парке «Ривер Парк Коломенское»"
Вчера — 30 апреля, четверг / Москва
Скорось открытия новых магазинов «Лэтуаль» снизится - 150 точек закроются к 2026 году.
Вчера — 30 апреля, четверг / Москва
Смайл-бар сети "Белая точка" теперь доступен посетителям ТЦ "Левел Причальный"
29 апреля, среда / Москва
Московский цех открыл производство 3D-принтеров для металлической печати.
29 апреля, среда / Москва
БМ-банк завершил продажу большей части площадей в ТЦ «Весна» на Новом Арбате.
29 апреля, среда / Москва
Перефразированное название: "Сеть магазинов 'Жизньмарт' возобновляет свою деятельность в Челябинске"
29 апреля, среда / Санкт-Петербург
Сервисный офис «Практик» начал свою работу на Октябрьской набережной в Санкт-Петербурге.
29 апреля, среда / Санкт-Петербург
Строительство складских помещений в Санкт-Петербурге и Ленинградской области увеличилось в 2,5 раза.
29 апреля, среда / Москва
Москва увеличила объем строительства в рамках программы МПТ до 9,5 миллионов квадратных метров
29 апреля, среда / Санкт-Петербург
Соседский центр "ЖИВИ Клуб" открыл свои двери в Новоселье
29 апреля, среда / Москва
"Завершено строительство пятиэтажной наземной парковки в районе Нагатинский Затон"
29 апреля, среда / Санкт-Петербург
Рекордный уровень строительства складов зафиксирован в Санкт-Петербурге и Ленинградской области
29 апреля, среда / Москва
Аренда складов в Москве снизилась на 25%