Купить готовый бизнес 1024 м²
ID 963539
Цена
208 436 224 ₽
Ставка
203 551 ₽ / м²
Площадь
1024 м²
Этаж
1 из 2
агентство недвижимости
г Москва, ул Кустанайская, д 8 к 3
На карте
Шипиловская
—
10 мин
Красногвардейская
—
8 мин
Зябликово
—
10 мин
Описание
Номер лота на нашем сайте: 44560. Предлагаем в покупку ОСЗ 1024 кв.м. в ЮАО. Полностью арендовано. Арендный бизнес с окупаемостью 8.5 лет.
Арендаторы:
Супермаркет "Пятерочка" занимает 1 и 2 этажи - 1 500000 руб в месяц. Договор на 10 лет.
Яндекс Лава в цокольном этаже - 500 000 руб в месяц
Вышка - 38 500 руб в месяц
Общий арендный поток - 2 043 500 руб
ЧОД 1 680 357 руб.
Окуп. по ЧОД 10 лет.
Коммунальные компенсируют арендаторы.
В расходы входит: Пожарная безопасность, ТБО, обслуживание лифтов, дворник, аренда земли, налог на здание 2%, налог на УСН 6%
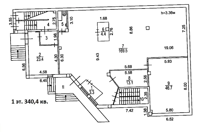
Распределение площадей:
1 этаж 340,4 кв.м.
2 этаж 425,9 кв.м.
цоколь 340,4 кв.м.
Есть парковка перед фасадом здания. Много места для размещения рекламы. Земля 538 кв.м. в аренде у города до января 2061 года.
Высота потолков 3,3 метра, 150 кВт электроэнергии.
Арендаторы:
Супермаркет "Пятерочка" занимает 1 и 2 этажи - 1 500000 руб в месяц. Договор на 10 лет.
Яндекс Лава в цокольном этаже - 500 000 руб в месяц
Вышка - 38 500 руб в месяц
Общий арендный поток - 2 043 500 руб
ЧОД 1 680 357 руб.
Окуп. по ЧОД 10 лет.
Коммунальные компенсируют арендаторы.
В расходы входит: Пожарная безопасность, ТБО, обслуживание лифтов, дворник, аренда земли, налог на здание 2%, налог на УСН 6%
Распределение площадей:
1 этаж 340,4 кв.м.
2 этаж 425,9 кв.м.
цоколь 340,4 кв.м.
Есть парковка перед фасадом здания. Много места для размещения рекламы. Земля 538 кв.м. в аренде у города до января 2061 года.
Высота потолков 3,3 метра, 150 кВт электроэнергии.
Расположение
г Москва, ул Кустанайская, д 8 к 3
Шипиловская
—
10 мин
Красногвардейская
—
8 мин
Зябликово
—
10 мин
Технические характеристики
Параметры
Электричество
есть
Инженерия
кондиционер, вентиляция
Статус владельца объявления
агентство
Новость дня
Все новости
8 мая, пятница / Москва
Усадьбу XVIII–XIX веков в центре Москвы выставили на аукцион «Дом.РФ»
8 мая, пятница / Москва
Бизнес-центр площадью 43,3 тыс. кв. м открыли в окрестностях Филевского парка.
8 мая, пятница / Крым
Гостиница на полуострове Крым выставлена на продажу по цене 117,7 миллиона рублей.
8 мая, пятница / Москва
В Нагатинской пойме откроется фитнес-клуб в гостиничном комплексе
8 мая, пятница / Москва
"Сменился владелец Торгового центра «Гудзон»"
8 мая, пятница / Москва
"Открытие обновленного футбольного комплекса в СберСити"
8 мая, пятница / Нижегородская
В Нижнем Новгороде будет восстановлен исторический здание для коммерческой аренды.
8 мая, пятница / Архангельская
Офисное здание в центре Архангельска выставлено на торги площадкой «Дом.РФ»
8 мая, пятница / Москва
Группа "Гранд НН" из Нижнего Новгорода продает пять компаний за 3,3 миллиарда рублей.
8 мая, пятница / Москва
Москва увеличила площадь жилой недвижимости на более чем 250 тыс. кв. м с начала года по Межевому плану территории.
7 мая, четверг / Москва
"Маркетплейсы занимают всего 9 % рынка онлайн-продаж продуктов питания"
7 мая, четверг / Москва
"ТРК «Зеленопарк» в Подмосковье выставлен на продажу компанией «Сбербанк капитал»"
7 мая, четверг / Москва
X5 Group планирует приобрести часть акций Zotman Pizza.
7 мая, четверг / Москва
"Уровень вакантности в офисном сегменте рынка Москвы достиг 5,3%"
7 мая, четверг / Москва
"В Московском регионе спрос на склады вырос на 70% благодаря онлайн-торговле и логистике"
7 мая, четверг / Москва
"Снижение объема розничных продаж на 0,5% за первый квартал"
7 мая, четверг / Москва
Планируется строительство девятиэтажного делового центра площадью 16 тыс. кв. м в Щукино.
7 мая, четверг / Москва
Развенчивание мифов: Пять исторических домов в районе Арбата пройдут капитальный ремонт.
7 мая, четверг / Москва
Продажа ТЦ "Летний сад" в Москве группой "Эталон" привела к потере в 2,2 млрд рублей.
7 мая, четверг / Москва
Предприятие "Свобода" под угрозой банкротства из-за задолженности в 125 миллионов рублей