Снять офис 106 м² в Москва, Электродная, 8
ID 965700
Цена
116 710 ₽/мес
Ставка
13 212 ₽ / м² / год
Площадь
106 м²
Класс
C
Этаж
5 из 5
ИФНС
7720
агентство недвижимости
г Москва, ул Электродная, д 8
На карте
Шоссе Энтузиастов
Шоссе Энтузиастов
Описание
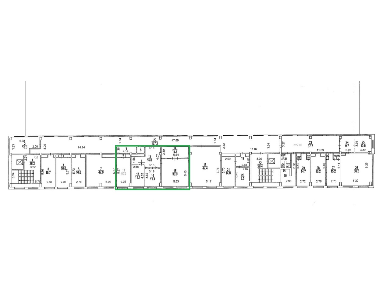
На территории комплекса "Электродная д. 8". В аренду предлагается офисный блок 106,1 м2, состоит из коридора и 4-х кабинетов- готово к въезду. Блок расположен на 5-м этаже административного здания. Лифта нет.Первая линия домов на Электродной улице. Парковки перед зданием нет, есть возможность парковаться на территории комплекса. Пешая доступность от метро Шоссе Энтузиастов. Прямая аренда. Удобное местоположение.Высота потолка 3 м, 5-й этаж административного здания, общий вход, пропускной режим, лифта нет.Административное здание "ГС - СФР" АО, ул. Электродная, д.5, первая линия домов. Шаговая доступность от метро Шоссе Энтузиастов 5 пешком. На территории предприятия круглосуточная платная парковка.Интернет- провайдер Сити-телеком. Территория БП находится под круглосуточной охраной и видеонаблюдением. Арендная ставка включает НДС, коммунальные платежи оплачиваются отдельно. Лот № 000006839
Расположение
г Москва, ул Электродная, д 8
Шоссе Энтузиастов
Шоссе Энтузиастов
Технические характеристики
Новость дня
Расширение возможностей для B2B-клиентов: Avito вводит новые услуги для строительства складов
На платформе Авито теперь доступна категория "Коммерческое строительство" в сегменте услуг, предлагающая широкий выбор специализированных работ и возведение объектов "под ключ" для бизнеса, что упрощает поиск подрядчиков и субподрядчиков для коммерческих проектов.
Все новости
Сегодня — 4 мая, понедельник / Москва
Российский складской рынок продолжает расти: площадь складских помещений превысит 60 млн кв. м к концу 2026 года
Сегодня — 4 мая, понедельник / Москва
"Компания "Галс-Девелопмент" получила одобрение на строительство делового центра "Дубининский"."
Сегодня — 4 мая, понедельник / Москва
Инвестиционный фонд "Бумеранг Капитал" стал владельцем половины сети кофеен "Цех 85"
Сегодня — 4 мая, понедельник / Краснодарский
В Анапе откроется первый отель с инновационными IT-сервисами
Сегодня — 4 мая, понедельник / Москва
Планируется строительство торгового центра площадью свыше 6 тыс. кв. м в Краснопахорском районе Москвы.
Сегодня — 4 мая, понедельник / Москва
Смена собственника у клубов «Дикая орхидея» и «Дефиле»
Сегодня — 4 мая, понедельник / Вологодская
"Прекращена деятельность "наливаек" и магазинов электронных сигарет в Вологодской области"
Сегодня — 4 мая, понедельник / Москва
"Exeed перемещает производство из Подмосковья на площадку АГР в Шушарах"
Сегодня — 4 мая, понедельник / Москва
На юге Москвы запланировано строительство ТПУ "Кленовый бульвар" на площади 2 гектара.
30 апреля, четверг / Москва
"Бумеранг Капитал" увеличил свою долю в сети кафе-пекарен "Цех 85" до 50%
30 апреля, четверг / Ставропольский
В Кисловодске начался проект строительства инвестиционного отеля "Реликт"
30 апреля, четверг / Москва
Ресторан «Долина 5165» и магазин Sokolov теперь доступны посетителям ТРЦ Avenue Sever
30 апреля, четверг / Москва
"Новый флагманский магазин под названием «Флаувау» открыл свои двери на Мясницкой улице"
30 апреля, четверг / Москва
"Уровень вакансии на складах в Московском регионе достиг 5,4% из-за увеличения предложений по субаренде"
30 апреля, четверг / Москва
"Прогнозируется незначительный прирост числа туристов в первом квартале 2026 года - всего 2,8%"
30 апреля, четверг / Москва
Компания "Ориентир" планирует вложить до 150 млрд рублей в расширение бизнеса и развитие новых секторов.
30 апреля, четверг / Москва
"Завершено строительство наземной парковки на 400 автомобильных мест в парке «Ривер Парк Коломенское»"
30 апреля, четверг / Москва
Скорось открытия новых магазинов «Лэтуаль» снизится - 150 точек закроются к 2026 году.
30 апреля, четверг / Москва
Смайл-бар сети "Белая точка" теперь доступен посетителям ТЦ "Левел Причальный"
29 апреля, среда / Москва
Московский цех открыл производство 3D-принтеров для металлической печати.