Описание
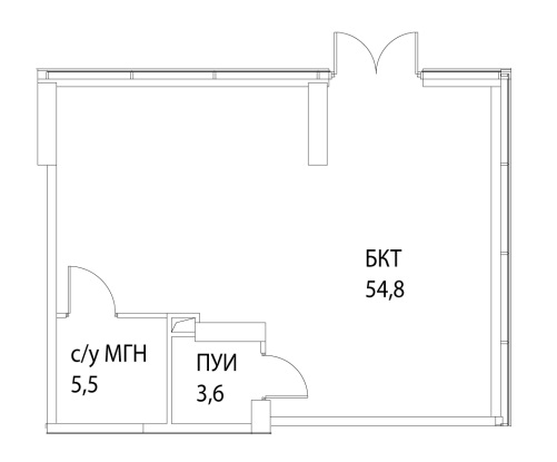
Помещение свободного назначения площадью 63.9 кв.м, в прямую аренду на любой срок. Минимальный срок аренды 36 мес с предоплатой за 1 месяц. Помещение располагается в 21-этажном жилом комплексе в 8 мин. пешком от м.Терехово, район города - Хорошево-Мневники. Помещение находится на 1 этаже здания.
Возможное назначение - свободное назначение, высота потолков 3 м, помещение под чистовую отделку, тип окон - витринные, окна выходят на улицу, год постройки 2024 г, застройщик здания - Донстрой.
Внутри центральное кондиционирование, вентиляция - приточная, центральное отопление, спринклерная система пожаротушения, внутри есть водоснабжение.
Отдельный вход с улицы, доступ в здание свободный, здание открыто круглосуточно, объект находится под охраной.
Парковка автомобилей - наземная, есть гостевые парковочные места, парковка предоставляется бесплатно.
Возможное назначение - свободное назначение, высота потолков 3 м, помещение под чистовую отделку, тип окон - витринные, окна выходят на улицу, год постройки 2024 г, застройщик здания - Донстрой.
Внутри центральное кондиционирование, вентиляция - приточная, центральное отопление, спринклерная система пожаротушения, внутри есть водоснабжение.
Отдельный вход с улицы, доступ в здание свободный, здание открыто круглосуточно, объект находится под охраной.
Парковка автомобилей - наземная, есть гостевые парковочные места, парковка предоставляется бесплатно.
Расположение
г Москва, ул Нижние Мнёвники, д 7
Терехово
—
8 мин
Технические характеристики
Параметры
Отопление
есть
Инженерия
вентиляция, пожарная сигнализация
Вид из окна
на улицу
Водоснабжение
есть
Охрана
есть
Статус владельца объявления
собственник
Параметры помещения
Высота потолков
—
Свободные помещения в ЖК Остров
Новость дня
Все новости
Вчера — 8 мая, пятница / Москва
Усадьбу XVIII–XIX веков в центре Москвы выставили на аукцион «Дом.РФ»
Вчера — 8 мая, пятница / Москва
Бизнес-центр площадью 43,3 тыс. кв. м открыли в окрестностях Филевского парка.
Вчера — 8 мая, пятница / Крым
Гостиница на полуострове Крым выставлена на продажу по цене 117,7 миллиона рублей.
Вчера — 8 мая, пятница / Москва
В Нагатинской пойме откроется фитнес-клуб в гостиничном комплексе
Вчера — 8 мая, пятница / Москва
"Сменился владелец Торгового центра «Гудзон»"
Вчера — 8 мая, пятница / Москва
"Открытие обновленного футбольного комплекса в СберСити"
Вчера — 8 мая, пятница / Нижегородская
В Нижнем Новгороде будет восстановлен исторический здание для коммерческой аренды.
Вчера — 8 мая, пятница / Архангельская
Офисное здание в центре Архангельска выставлено на торги площадкой «Дом.РФ»
Вчера — 8 мая, пятница / Москва
Группа "Гранд НН" из Нижнего Новгорода продает пять компаний за 3,3 миллиарда рублей.
Вчера — 8 мая, пятница / Москва
Москва увеличила площадь жилой недвижимости на более чем 250 тыс. кв. м с начала года по Межевому плану территории.
7 мая, четверг / Москва
"Маркетплейсы занимают всего 9 % рынка онлайн-продаж продуктов питания"
7 мая, четверг / Москва
"ТРК «Зеленопарк» в Подмосковье выставлен на продажу компанией «Сбербанк капитал»"
7 мая, четверг / Москва
X5 Group планирует приобрести часть акций Zotman Pizza.
7 мая, четверг / Москва
"Уровень вакантности в офисном сегменте рынка Москвы достиг 5,3%"
7 мая, четверг / Москва
"В Московском регионе спрос на склады вырос на 70% благодаря онлайн-торговле и логистике"
7 мая, четверг / Москва
"Снижение объема розничных продаж на 0,5% за первый квартал"
7 мая, четверг / Москва
Планируется строительство девятиэтажного делового центра площадью 16 тыс. кв. м в Щукино.
7 мая, четверг / Москва
Развенчивание мифов: Пять исторических домов в районе Арбата пройдут капитальный ремонт.
7 мая, четверг / Москва
Продажа ТЦ "Летний сад" в Москве группой "Эталон" привела к потере в 2,2 млрд рублей.
7 мая, четверг / Москва
Предприятие "Свобода" под угрозой банкротства из-за задолженности в 125 миллионов рублей