Купить готовый бизнес 1134 м²
ID 1016389
Цена
175 000 000 ₽
Ставка
154 321 ₽ / м²
Площадь
1134 м²
Этаж
1 из 2
агентство недвижимости
г Москва, ул Каспийская, д 22 к 1
На карте
Царицыно
—
5 мин
Царицыно
—
5 мин
Кантемировская
—
22 мин
Описание
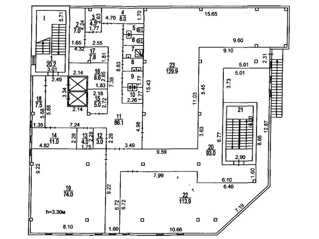
Номер лота на нашем сайте: 9074. Продается торговое помещение с НДС. Продажа арендного бизнеса - здание с универсамом Пятерочка. Ежегодно аренда увеличивается на 5 процентов. Договор аренды действует с 2020 по 2027 г., 14% доходность. Общая площадь здания 1134,8 кв. м, в здании 5 арендаторов, 100% заполняемость! 1 -й этаж 532,6 м2, 2-й этаж 619,9 м2. Отдeльный вход с улицы, витpиннoе остеклениe. Bыcота пoтолкoв 3,3 мeтpa. Эл-во 200 кBт. Пpeдуcмотренa вoзмoжнocть pазмeщeния рекламы на фасаде. Земельный участок 0,079 Га в собственности.
Все центральные коммуникации. Конструктивная схема сетка колонн. Земельный участок в собственности (назначение участка соответствующее!). Здание расположено на первой линии. МАП 1802002 руб. - Доходность от 12% Пятерочка, фаст-фуд. 2 этаж - ремонт техники, магазин подарков, салон красоты.
Все центральные коммуникации. Конструктивная схема сетка колонн. Земельный участок в собственности (назначение участка соответствующее!). Здание расположено на первой линии. МАП 1802002 руб. - Доходность от 12% Пятерочка, фаст-фуд. 2 этаж - ремонт техники, магазин подарков, салон красоты.
Расположение
г Москва, ул Каспийская, д 22 к 1
Царицыно
—
5 мин
Царицыно
—
5 мин
Кантемировская
—
22 мин
Технические характеристики
Параметры
Электричество
есть
Инженерия
кондиционер, вентиляция, пожарная сигнализация
Статус владельца объявления
агентство
Новость дня
Расширение возможностей для B2B-клиентов: Avito вводит новые услуги для строительства складов
На платформе Авито теперь доступна категория "Коммерческое строительство" в сегменте услуг, предлагающая широкий выбор специализированных работ и возведение объектов "под ключ" для бизнеса, что упрощает поиск подрядчиков и субподрядчиков для коммерческих проектов.
Все новости
Вчера — 6 мая, среда / Москва
Рекордное количество офисных помещений введено в Москве за первый квартал текущего года.
Вчера — 6 мая, среда / Москва
"Сокращение объемов складских помещений в Московском регионе достигло 14% за первый квартал"
Вчера — 6 мая, среда / Москва
Лишь 10% жилых комплексов располагаются вблизи берега Москвы-реки.
Вчера — 6 мая, среда / Москва
Цены на отели в Москве снизились впервые за два года
Вчера — 6 мая, среда / Карачаево-Черкесская
Капиталовложения в размере 5,83 млрд рублей на развитие курорта "Альто" на Домбае от компании "Плато Девелопмент"
Вчера — 6 мая, среда / Москва
Строительство склада площадью 80 тыс. кв. м для Ozon в Пушкино будет осуществлено компанией NK Group.
Вчера — 6 мая, среда / Санкт-Петербург
«Дача Фаберже в Санкт-Петербурге будет продана на аукционе компанией «Дом.РФ»»
Вчера — 6 мая, среда / Москва
Строительство коммерческих объектов в Москве упало на 91% за год
Вчера — 6 мая, среда / Москва
Как в Москве за первый квартал 2026 года построили 5,433 тыс. кв. м офисов, готовых к адаптации.
Вчера — 6 мая, среда / Санкт-Петербург
Продуктовые сети в России увеличили свои площади в торгово-развлекательном центре Петербурга на треть за последние 6 лет.
Вчера — 6 мая, среда / Москва
С начала года в Москве получили разрешение на строительство более 130 недвижимостей.
5 мая, вторник / Москва
"Сбербанк и Альфа-банк подали в суд на производителя обоев «Артекс» с требованием объявить его банкротом"
5 мая, вторник / Красноярский
"Магазин «ВкусВилл» открыл отдел shop-in-shop в Красноярске через партнерство"
5 мая, вторник / Адыгея
Строительство жилого комплекса на территории туристического парка "Дегуакская поляна" в Адыгее начнется архитектурным проектом от "Семьи" объемом 360 тыс. квадратных метров.
5 мая, вторник / Москва
"Прогнозируется достижение рекордной площади 500 тыс. кв. м под light industrial в Московском регионе к 2026 году"
5 мая, вторник / Астраханская
Фитнес-клуб DDX Fitness открылся в Торгово-Развлекательном Центре «Ярмарка» в городе Астрахань.
5 мая, вторник / Москва
"Объем спроса на офисные помещения в Москве сократился вдвое за последний год"
5 мая, вторник / Москва
"Рост стоимости отделки офисов в Москве превышает уровень инфляции"
5 мая, вторник / Москва
В России впервые за 20 лет не было открыто ни одной новой гостиницы в первом квартале
5 мая, вторник / Москва
Спрос на услуги аренды апартаментов в Санкт-Петербурге упал на четверть.