Купить офис 23 м²
ID 1025954
Цена
10 215 000 ₽
Ставка
444 130 ₽ / м²
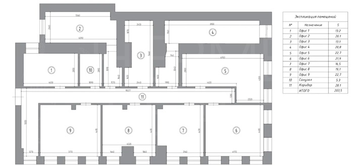
Площадь
23 м²
Класс
не указан
Этаж
1 из -
ИФНС
7702
агентство недвижимости
г Москва, пер Напрудный, д 8 стр 1
На карте
Рижская
—
7 мин
Проспект Мира
—
8 мин
Рижская
—
8 мин
Описание
Продажа офиса 22,7 м² в БЦ «Напрудный переулок, 8с1» у м. Рижская (ЦАО)Расположение:
Москва, ЦАО, р-н Мещанский, Напрудный пер., 8с1
🏢 Бизнес-центр, 1-й этаж 3-этажного зданияТранспорт:
🚇 Рижская — 9 мин. пешком
🚇 Проспект Мира — 12 мин. пешком
🚇 Марьина Роща — 17 мин. пешкомОписание помещения:
🔹 Площадь: 22,7 м² с современным ремонтом по дизайн-проекту
🔹 Состояние: Готово к использованию
🔹 Отделка:
▫️ Стены: окраска/декоративная штукатурка
▫️ Пол: ламинат/керамическая плитка
▫️ Многосценарное освещение всех зон
▫️ Санузел: полная комплектация (сантехника, зеркало, аксессуары)
🔹 Коммуникации: Центральные
🔹 Высота потолков: 2,9 мКлючевые преимущества:
✅ Престижная локация: Окружение известными бизнес-центрами («Особняк Центросоюза», «Новион» и др.)
✅ Готовое решение: Не требуется вложений в ремонт и оснащение
✅ Транспортная доступность: Быстрая связь с центром города и ключевыми магистралями
✅ Безопасность: Входная дверь с высокой звукоизоляцией и электронным замкомУсловия продажи:
• Налогообложение: УСН
• Тип сделки: Продажа объекта недвижимости по ДКПИдеальный вариант для стартапа, частной практики или представительства! Компактное и полностью готовое рабочее пространство в деловом кластере Москвы.Звоните для организации просмотра и уточнения деталей! Объект №3100-979405.
Москва, ЦАО, р-н Мещанский, Напрудный пер., 8с1
🏢 Бизнес-центр, 1-й этаж 3-этажного зданияТранспорт:
🚇 Рижская — 9 мин. пешком
🚇 Проспект Мира — 12 мин. пешком
🚇 Марьина Роща — 17 мин. пешкомОписание помещения:
🔹 Площадь: 22,7 м² с современным ремонтом по дизайн-проекту
🔹 Состояние: Готово к использованию
🔹 Отделка:
▫️ Стены: окраска/декоративная штукатурка
▫️ Пол: ламинат/керамическая плитка
▫️ Многосценарное освещение всех зон
▫️ Санузел: полная комплектация (сантехника, зеркало, аксессуары)
🔹 Коммуникации: Центральные
🔹 Высота потолков: 2,9 мКлючевые преимущества:
✅ Престижная локация: Окружение известными бизнес-центрами («Особняк Центросоюза», «Новион» и др.)
✅ Готовое решение: Не требуется вложений в ремонт и оснащение
✅ Транспортная доступность: Быстрая связь с центром города и ключевыми магистралями
✅ Безопасность: Входная дверь с высокой звукоизоляцией и электронным замкомУсловия продажи:
• Налогообложение: УСН
• Тип сделки: Продажа объекта недвижимости по ДКПИдеальный вариант для стартапа, частной практики или представительства! Компактное и полностью готовое рабочее пространство в деловом кластере Москвы.Звоните для организации просмотра и уточнения деталей! Объект №3100-979405.
Расположение
г Москва, пер Напрудный, д 8 стр 1
Рижская
—
7 мин
Проспект Мира
—
8 мин
Рижская
—
8 мин
Технические характеристики
Параметры
Статус владельца объявления
агентство
Отделка
офисная отделка
Новость дня
Все новости
8 мая, пятница / Москва
Усадьбу XVIII–XIX веков в центре Москвы выставили на аукцион «Дом.РФ»
8 мая, пятница / Москва
Бизнес-центр площадью 43,3 тыс. кв. м открыли в окрестностях Филевского парка.
8 мая, пятница / Крым
Гостиница на полуострове Крым выставлена на продажу по цене 117,7 миллиона рублей.
8 мая, пятница / Москва
В Нагатинской пойме откроется фитнес-клуб в гостиничном комплексе
8 мая, пятница / Москва
"Сменился владелец Торгового центра «Гудзон»"
8 мая, пятница / Москва
"Открытие обновленного футбольного комплекса в СберСити"
8 мая, пятница / Нижегородская
В Нижнем Новгороде будет восстановлен исторический здание для коммерческой аренды.
8 мая, пятница / Архангельская
Офисное здание в центре Архангельска выставлено на торги площадкой «Дом.РФ»
8 мая, пятница / Москва
Группа "Гранд НН" из Нижнего Новгорода продает пять компаний за 3,3 миллиарда рублей.
8 мая, пятница / Москва
Москва увеличила площадь жилой недвижимости на более чем 250 тыс. кв. м с начала года по Межевому плану территории.
7 мая, четверг / Москва
"Маркетплейсы занимают всего 9 % рынка онлайн-продаж продуктов питания"
7 мая, четверг / Москва
"ТРК «Зеленопарк» в Подмосковье выставлен на продажу компанией «Сбербанк капитал»"
7 мая, четверг / Москва
X5 Group планирует приобрести часть акций Zotman Pizza.
7 мая, четверг / Москва
"Уровень вакантности в офисном сегменте рынка Москвы достиг 5,3%"
7 мая, четверг / Москва
"В Московском регионе спрос на склады вырос на 70% благодаря онлайн-торговле и логистике"
7 мая, четверг / Москва
"Снижение объема розничных продаж на 0,5% за первый квартал"
7 мая, четверг / Москва
Планируется строительство девятиэтажного делового центра площадью 16 тыс. кв. м в Щукино.
7 мая, четверг / Москва
Развенчивание мифов: Пять исторических домов в районе Арбата пройдут капитальный ремонт.
7 мая, четверг / Москва
Продажа ТЦ "Летний сад" в Москве группой "Эталон" привела к потере в 2,2 млрд рублей.
7 мая, четверг / Москва
Предприятие "Свобода" под угрозой банкротства из-за задолженности в 125 миллионов рублей