Описание
Предложение на продажу № 62220.
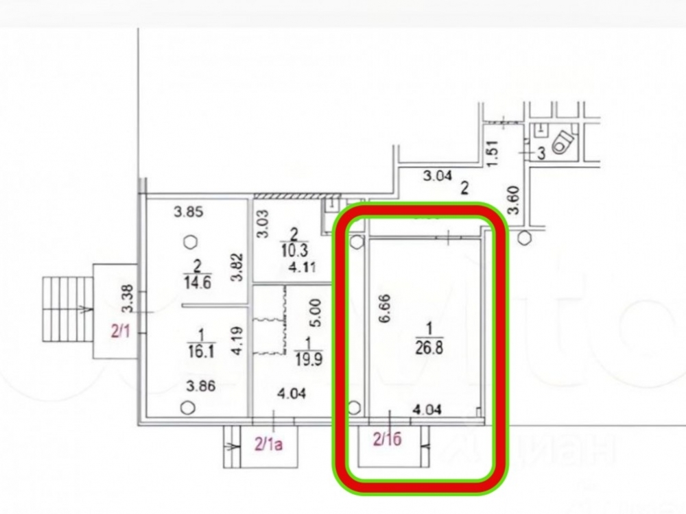
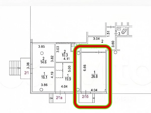
Продается готовый арендный бизнес по адресу: Москва, ул. Генерала Белова, 9, площадью 42.9 кв. м. Плотный жилой массив, сверх интенсивный пешеходный трафик, первая линия домов, Финансово-юридическая академия МФЮА на расстоянии 100 метров, 2 отделения колледжа Царицыно. Поток студентов большая бесплатная парковка у здания.
.
.
. Технические характеристики:
. 1-й этаж отдельно стоящего здания площадью 42.9 кв. м. Свежий ремонт, замена кровли и инженерных систем, чистовая отделка, замена остекления на панорамные окна, Отдельная входная группа.
.
. Арендатор:
. Шеф Донер, ДДА 5 лет, ежегодная индексация 7%,
. МАП - 200 000 рублей, ГАП - 2 400 000 рублей,
.
. Коммерческие условия:
. Стоимость объекта - 30 000 000 рублей,
. Стоимость кв.м - 699 300 рублей.
Торговая недвижимость, Street Retail. 1 линия домов. Витрины. Место для рекламы. Проходное и проездное место.
Арендный бизнес. Окупаемость c индексацией: 10 лет. Ежегодная индексация: 5%. По первому году: 12 лет и 6 меc. Доходность c индексацией: 10.00%. Доходность c индексацией: 10.00%. По первому году: 8.00%.
Без комиссии.
Продается готовый арендный бизнес по адресу: Москва, ул. Генерала Белова, 9, площадью 42.9 кв. м. Плотный жилой массив, сверх интенсивный пешеходный трафик, первая линия домов, Финансово-юридическая академия МФЮА на расстоянии 100 метров, 2 отделения колледжа Царицыно. Поток студентов большая бесплатная парковка у здания.
.
.
. Технические характеристики:
. 1-й этаж отдельно стоящего здания площадью 42.9 кв. м. Свежий ремонт, замена кровли и инженерных систем, чистовая отделка, замена остекления на панорамные окна, Отдельная входная группа.
.
. Арендатор:
. Шеф Донер, ДДА 5 лет, ежегодная индексация 7%,
. МАП - 200 000 рублей, ГАП - 2 400 000 рублей,
.
. Коммерческие условия:
. Стоимость объекта - 30 000 000 рублей,
. Стоимость кв.м - 699 300 рублей.
Торговая недвижимость, Street Retail. 1 линия домов. Витрины. Место для рекламы. Проходное и проездное место.
Арендный бизнес. Окупаемость c индексацией: 10 лет. Ежегодная индексация: 5%. По первому году: 12 лет и 6 меc. Доходность c индексацией: 10.00%. Доходность c индексацией: 10.00%. По первому году: 8.00%.
Без комиссии.
Расположение
г Москва, ул Генерала Белова, д 9
Домодедовская
—
6 мин
Шипиловская
—
19 мин
Орехово
—
22 мин
Технические характеристики
Параметры
Статус владельца объявления
агентство
Новость дня
Расширение возможностей для B2B-клиентов: Avito вводит новые услуги для строительства складов
На платформе Авито теперь доступна категория "Коммерческое строительство" в сегменте услуг, предлагающая широкий выбор специализированных работ и возведение объектов "под ключ" для бизнеса, что упрощает поиск подрядчиков и субподрядчиков для коммерческих проектов.
Все новости
Вчера — 30 апреля, четверг / Москва
"Бумеранг Капитал" увеличил свою долю в сети кафе-пекарен "Цех 85" до 50%
Вчера — 30 апреля, четверг / Ставропольский
В Кисловодске начался проект строительства инвестиционного отеля "Реликт"
Вчера — 30 апреля, четверг / Москва
Ресторан «Долина 5165» и магазин Sokolov теперь доступны посетителям ТРЦ Avenue Sever
Вчера — 30 апреля, четверг / Москва
"Новый флагманский магазин под названием «Флаувау» открыл свои двери на Мясницкой улице"
Вчера — 30 апреля, четверг / Москва
"Уровень вакансии на складах в Московском регионе достиг 5,4% из-за увеличения предложений по субаренде"
Вчера — 30 апреля, четверг / Москва
"Прогнозируется незначительный прирост числа туристов в первом квартале 2026 года - всего 2,8%"
Вчера — 30 апреля, четверг / Москва
Компания "Ориентир" планирует вложить до 150 млрд рублей в расширение бизнеса и развитие новых секторов.
Вчера — 30 апреля, четверг / Москва
"Завершено строительство наземной парковки на 400 автомобильных мест в парке «Ривер Парк Коломенское»"
Вчера — 30 апреля, четверг / Москва
Скорось открытия новых магазинов «Лэтуаль» снизится - 150 точек закроются к 2026 году.
Вчера — 30 апреля, четверг / Москва
Смайл-бар сети "Белая точка" теперь доступен посетителям ТЦ "Левел Причальный"
29 апреля, среда / Москва
Московский цех открыл производство 3D-принтеров для металлической печати.
29 апреля, среда / Москва
БМ-банк завершил продажу большей части площадей в ТЦ «Весна» на Новом Арбате.
29 апреля, среда / Москва
Перефразированное название: "Сеть магазинов 'Жизньмарт' возобновляет свою деятельность в Челябинске"
29 апреля, среда / Санкт-Петербург
Сервисный офис «Практик» начал свою работу на Октябрьской набережной в Санкт-Петербурге.
29 апреля, среда / Санкт-Петербург
Строительство складских помещений в Санкт-Петербурге и Ленинградской области увеличилось в 2,5 раза.
29 апреля, среда / Москва
Москва увеличила объем строительства в рамках программы МПТ до 9,5 миллионов квадратных метров
29 апреля, среда / Санкт-Петербург
Соседский центр "ЖИВИ Клуб" открыл свои двери в Новоселье
29 апреля, среда / Москва
"Завершено строительство пятиэтажной наземной парковки в районе Нагатинский Затон"
29 апреля, среда / Санкт-Петербург
Рекордный уровень строительства складов зафиксирован в Санкт-Петербурге и Ленинградской области
29 апреля, среда / Москва
Аренда складов в Москве снизилась на 25%