Описание
Семейная ипотека!
Зимний дом 200 кв. м. на участке 11,3 сотки под дачное строительство в д. Марино, квартал Маринские дачи.
Каркасный дом в процессе отделки на капитальном ленточном фундаменте.
Кровля - металлическая черепица.
ОТДЕЛКА: ламинат и плитка (санузлы, прихожка, бойлерная). Обои под покраску. Натяжные потолки. Лестница деревянная, окрашенная.
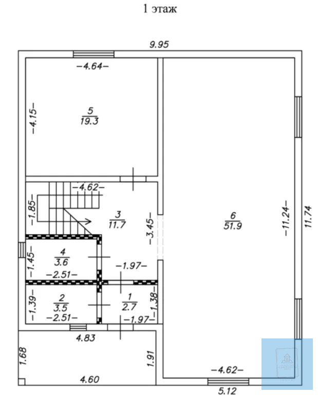
ПЛАНИРОВКА:
- 1 этаж: Крыльцо, прихожка, бойлерная, санузел, коридор, спальня 19,3 кв.м. , кухня-гостиная 51,9 кв.м.
- 2 этаж: 2 спальни по 19кв.м., спальня 21,9 и 11,7 метра, санузел и и гардеробная
КОММУНИКАЦИИ: Электричество 15 кВт, скважина, переливной септик. интернет и газ по границе участка рядом. отопление - электрический котел с разводкой по батареям.
УЧАСТОК: по всему периметру участка установлен забор, отмостка вокруг дома, дорожки, площадка под автомобиль, откатные механические ворота. Круглогодичный подъезд - асфальтированная крошка.
Легко добраться до Москвы в течение 1,5 часа по Пятницкому, Ленинградскому шоссе, Новорижскому шоссе или М-11.
До автобусной остановки 100 метров, автобусы ходят регулярно. AFY-506735105
Зимний дом 200 кв. м. на участке 11,3 сотки под дачное строительство в д. Марино, квартал Маринские дачи.
Каркасный дом в процессе отделки на капитальном ленточном фундаменте.
Кровля - металлическая черепица.
ОТДЕЛКА: ламинат и плитка (санузлы, прихожка, бойлерная). Обои под покраску. Натяжные потолки. Лестница деревянная, окрашенная.
ПЛАНИРОВКА:
- 1 этаж: Крыльцо, прихожка, бойлерная, санузел, коридор, спальня 19,3 кв.м. , кухня-гостиная 51,9 кв.м.
- 2 этаж: 2 спальни по 19кв.м., спальня 21,9 и 11,7 метра, санузел и и гардеробная
КОММУНИКАЦИИ: Электричество 15 кВт, скважина, переливной септик. интернет и газ по границе участка рядом. отопление - электрический котел с разводкой по батареям.
УЧАСТОК: по всему периметру участка установлен забор, отмостка вокруг дома, дорожки, площадка под автомобиль, откатные механические ворота. Круглогодичный подъезд - асфальтированная крошка.
Легко добраться до Москвы в течение 1,5 часа по Пятницкому, Ленинградскому шоссе, Новорижскому шоссе или М-11.
До автобусной остановки 100 метров, автобусы ходят регулярно. AFY-506735105
Расположение
Московская обл, г Клин, тер. ДНП Маринские дачи (д Марино), д 99
Технические характеристики
Параметры
Водоснабжение
есть
Электричество
есть
Канализация
есть
Отопление
есть
Тип балкона
балкон
Параметры помещения
площадь кухни м²
50
Новость дня
Расширение возможностей для B2B-клиентов: Avito вводит новые услуги для строительства складов
На платформе Авито теперь доступна категория "Коммерческое строительство" в сегменте услуг, предлагающая широкий выбор специализированных работ и возведение объектов "под ключ" для бизнеса, что упрощает поиск подрядчиков и субподрядчиков для коммерческих проектов.
Все новости
Вчера — 5 мая, вторник / Москва
"Сбербанк и Альфа-банк подали в суд на производителя обоев «Артекс» с требованием объявить его банкротом"
Вчера — 5 мая, вторник / Красноярский
"Магазин «ВкусВилл» открыл отдел shop-in-shop в Красноярске через партнерство"
Вчера — 5 мая, вторник / Адыгея
Строительство жилого комплекса на территории туристического парка "Дегуакская поляна" в Адыгее начнется архитектурным проектом от "Семьи" объемом 360 тыс. квадратных метров.
Вчера — 5 мая, вторник / Москва
"Прогнозируется достижение рекордной площади 500 тыс. кв. м под light industrial в Московском регионе к 2026 году"
Вчера — 5 мая, вторник / Астраханская
Фитнес-клуб DDX Fitness открылся в Торгово-Развлекательном Центре «Ярмарка» в городе Астрахань.
Вчера — 5 мая, вторник / Москва
"Объем спроса на офисные помещения в Москве сократился вдвое за последний год"
Вчера — 5 мая, вторник / Москва
"Рост стоимости отделки офисов в Москве превышает уровень инфляции"
Вчера — 5 мая, вторник / Москва
В России впервые за 20 лет не было открыто ни одной новой гостиницы в первом квартале
Вчера — 5 мая, вторник / Москва
Спрос на услуги аренды апартаментов в Санкт-Петербурге упал на четверть.
Вчера — 5 мая, вторник / Москва
"Сеть магазинов 'Лента' запустила свой первый розничный магазин специализированных товаров для ремонта, дачи и сада в Шушарах"
4 мая, понедельник / Москва
Вложения в недвижимость России за первую половину текущего года составили 169,5 миллиарда рублей.
4 мая, понедельник / Москва
Российский складской рынок продолжает расти: площадь складских помещений превысит 60 млн кв. м к концу 2026 года
4 мая, понедельник / Москва
"Компания "Галс-Девелопмент" получила одобрение на строительство делового центра "Дубининский"."
4 мая, понедельник / Москва
Инвестиционный фонд "Бумеранг Капитал" стал владельцем половины сети кофеен "Цех 85"
4 мая, понедельник / Краснодарский
В Анапе откроется первый отель с инновационными IT-сервисами
4 мая, понедельник / Москва
Планируется строительство торгового центра площадью свыше 6 тыс. кв. м в Краснопахорском районе Москвы.
4 мая, понедельник / Москва
Смена собственника у клубов «Дикая орхидея» и «Дефиле»
4 мая, понедельник / Вологодская
"Прекращена деятельность "наливаек" и магазинов электронных сигарет в Вологодской области"
4 мая, понедельник / Москва
"Exeed перемещает производство из Подмосковья на площадку АГР в Шушарах"
4 мая, понедельник / Москва
На юге Москвы запланировано строительство ТПУ "Кленовый бульвар" на площади 2 гектара.