Купить офис 70 м²
ID 877755
Цена
15 600 000 ₽
Ставка
222 857 ₽ / м²
Площадь
70 м²
Класс
не указан
Этаж
не указан
ИФНС
7710
агентство недвижимости
г Москва, пер Старопименовский, д 8
На карте
Маяковская
—
5 мин
Пушкинская
—
5 мин
Тверская
—
5 мин
Описание
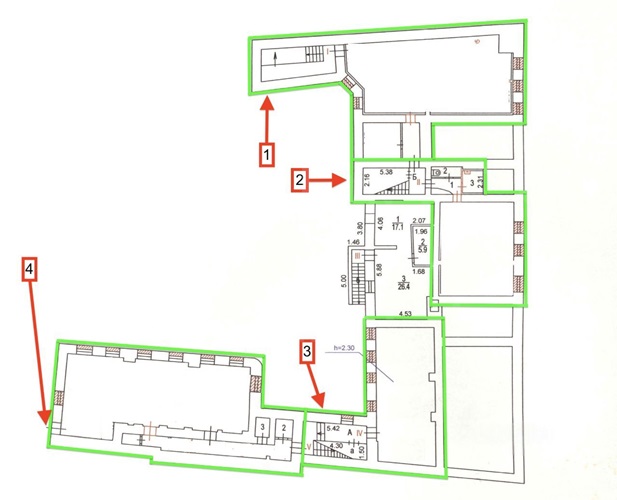
Продажа ПСН 70 м2 м. Пушкинская в ЦАОПродаётся уникальное помещение в центре Москвы, Локация: Всего 40 метров до Тверской улицы. Премиальное расположение в самом сердце столицы. Объект состоит из 4 помещений на цокольном этаже: Помещение 1 с отдельным входом с улицы 130 м - 5 окон - 26'000'000 РУБ, Помещение 2 вход через подъезд 78 м, - 3 окна - 15'600'000 РУБ, Помещение 3 с отдельным входом с улицы 98 м - 6 окна -19'600'000РУБ, Помещение 4 с отдельным входом с улицы 139 м - 8 окон - 30'000'000РУБ, Основные характеристики: Стены восстановленный исторический царский кирпич. Потолки монолитный бетон и сводное перекрытие. Все коммуникации полностью заменены: Канализация, Отопление, Горячее и холодное водоснабжение, Электропроводка. В каждом помещении предусмотрены: Санузел, Мокрая точка для установки кухни.Установлены новые стеклопакеты, в помещении 20 окон. Преимущества: Один собственник, быстрый выход на сделку. Все документы готовы. Свободное назначение. Парковка во дворе под шлагбаумом. Состояние: Ремонт на финальной стадии. На фото представлен финишный результат отделки, который будет достигнут к моменту завершения работ. Возможность приобретения каждого помещения отдельно (смотрите планировки БТИ). Не упустите возможность приобрести уникальный объект в самом центре Москвы. Объект №3100-973842.
Расположение
г Москва, пер Старопименовский, д 8
Маяковская
—
5 мин
Пушкинская
—
5 мин
Тверская
—
5 мин
Технические характеристики
Параметры
Статус владельца объявления
агентство
Новость дня
Все новости
8 мая, пятница / Москва
Усадьбу XVIII–XIX веков в центре Москвы выставили на аукцион «Дом.РФ»
8 мая, пятница / Москва
Бизнес-центр площадью 43,3 тыс. кв. м открыли в окрестностях Филевского парка.
8 мая, пятница / Крым
Гостиница на полуострове Крым выставлена на продажу по цене 117,7 миллиона рублей.
8 мая, пятница / Москва
В Нагатинской пойме откроется фитнес-клуб в гостиничном комплексе
8 мая, пятница / Москва
"Сменился владелец Торгового центра «Гудзон»"
8 мая, пятница / Москва
"Открытие обновленного футбольного комплекса в СберСити"
8 мая, пятница / Нижегородская
В Нижнем Новгороде будет восстановлен исторический здание для коммерческой аренды.
8 мая, пятница / Архангельская
Офисное здание в центре Архангельска выставлено на торги площадкой «Дом.РФ»
8 мая, пятница / Москва
Группа "Гранд НН" из Нижнего Новгорода продает пять компаний за 3,3 миллиарда рублей.
8 мая, пятница / Москва
Москва увеличила площадь жилой недвижимости на более чем 250 тыс. кв. м с начала года по Межевому плану территории.
7 мая, четверг / Москва
"Маркетплейсы занимают всего 9 % рынка онлайн-продаж продуктов питания"
7 мая, четверг / Москва
"ТРК «Зеленопарк» в Подмосковье выставлен на продажу компанией «Сбербанк капитал»"
7 мая, четверг / Москва
X5 Group планирует приобрести часть акций Zotman Pizza.
7 мая, четверг / Москва
"Уровень вакантности в офисном сегменте рынка Москвы достиг 5,3%"
7 мая, четверг / Москва
"В Московском регионе спрос на склады вырос на 70% благодаря онлайн-торговле и логистике"
7 мая, четверг / Москва
"Снижение объема розничных продаж на 0,5% за первый квартал"
7 мая, четверг / Москва
Планируется строительство девятиэтажного делового центра площадью 16 тыс. кв. м в Щукино.
7 мая, четверг / Москва
Развенчивание мифов: Пять исторических домов в районе Арбата пройдут капитальный ремонт.
7 мая, четверг / Москва
Продажа ТЦ "Летний сад" в Москве группой "Эталон" привела к потере в 2,2 млрд рублей.
7 мая, четверг / Москва
Предприятие "Свобода" под угрозой банкротства из-за задолженности в 125 миллионов рублей